Lagerbehälter aus Edelstahl V2A, WSt. 1.4301
| Attribute | Wert |
|
Artikelnummer |
09-2102GL |
|
Kurzbezeichnung 1 |
Lagerbehälter aus Edelstahl V2A, WSt. 1.4301 |
|
Technische Daten / Maße |
|
|---|---|
| Attribute | Wert |
|
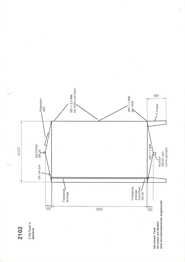
Stückzahl |
2 |
|
Volumen |
12000 Liter |
|
Behälterart |
Lagerbehälter |
|
Zustand |
gebraucht |
|
Bauform |
stehend |
|
Innenbeschichtung |
keine/roh |
|
Durchmesser außen |
2300 mm |
|
Zylindrische Höhe |
3030 mm |
|
Gesamthöhe |
4130 mm |
|
Betriebsdruck |
drucklos |
|
Wandstärke Unterboden |
3 mm |
|
Wandstärke Mantel/Zylinder |
3 mm |
|
Ausstattung |
|
| Attribute | Wert |
|
Standform |
Profilfüße |
|
Anzahl |
4 |
|
Befestigung |
fest |
|
Unterboden |
1 Auslaufstutzen nach vorne gezogen DN 65 |
|
Bodenart oben |
Kegelboden |
|
Bodenart unten |
Kegelboden |
|
Skizze vorhanden |
1 |
|
Behälterdokumentation vorhanden |
ansonsten gem. Skizze und Fotos |
|
Anmerkungen |
1 St. Behälter hat am Unterboden ein Anschluss für Druckmesssonde |