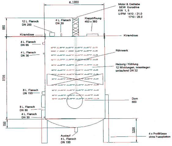
Rührwerksbehälter aus Stahl, kühl-/heizbar
| Attribute | Wert |
|
Artikelnummer |
11-005G |
|
Kurzbezeichnung 1 |
Rührwerksbehälter aus Stahl, kühl-/heizbar |
|
Technische Daten / Maße |
|
|---|---|
| Attribute | Wert |
|
Stückzahl |
1 |
|
Volumen |
9977 Liter |
|
Behälterart |
Rührwerksbehälter |
|
Zustand |
gebraucht |
|
Bauform |
stehend |
|
Innenbeschichtung |
keine/roh |
|
Oberflächenbehandlung außen |
lackiert |
|
Farbe Lack |
Weiß |
|
Durchmesser außen |
1800 mm |
|
Zylindrische Höhe |
3730 mm |
|
Gesamthöhe |
5860 mm |
|
Betriebsdruck |
drucklos |
|
Wandstärke Unterboden |
7 mm |
|
Wandstärke Oberboden |
6 mm |
|
Wandstärke Mantel/Zylinder |
6 mm |
|
Heiz-/Kühlsystem |
|
| Attribute | Wert |
|
Heiz-/Kühlsystem |
1 |
|
Zylinder |
Rohrschlangen innen |
|
Anmerkungen |
1 umlaufende Heiz-/Kühlschlange, 12 Wicklungen aus Edelstahlrohr DN 50 |
|
Ausstattung |
|
| Attribute | Wert |
|
Standform |
Profilfüße |
|
Anzahl |
3 |
|
Befestigung |
fest |
|
Unterboden |
1 Auslaufflansch DN 100 |
|
Bodenart oben |
Flachboden |
|
Bodenart unten |
Klöpperboden |
|
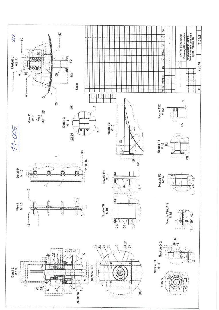
Skizze vorhanden |
1 |
|
Behälterdokumentation vorhanden |
ansonsten gem. Skizze |
|
Rührwerk |
|
| Attribute | Wert |
|
Rührwerk |
1 |
|
Anzahl |
1 |
|
Einbau |
von oben |
|
Geschwindigkeit |
1401 Umdrehungen/Mute |
|
Rührwerkleistung |
15 kW |
|
Anzahl der Rührwerkebenen |
4 |