Lagerbehälter aus Stahl, heiz-/kühlbar, doppelw.
| Attribute | Wert |
|
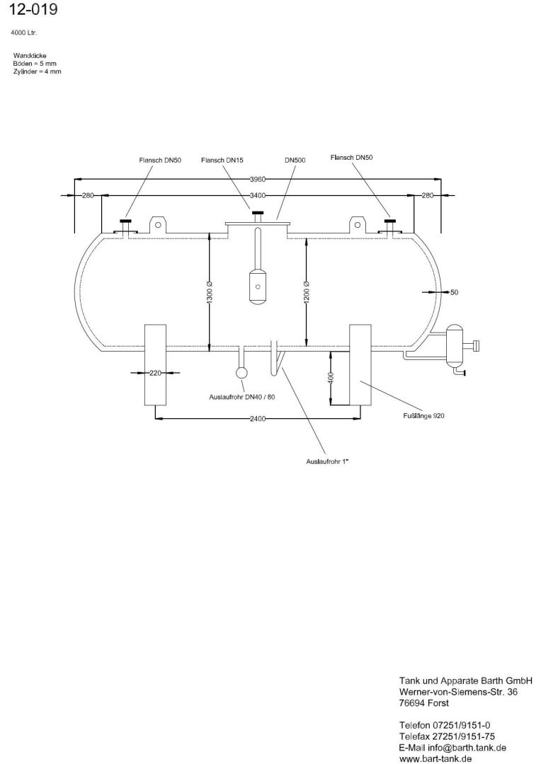
Artikelnummer |
12-019G |
|
Kurzbezeichnung 1 |
Lagerbehälter aus Stahl, heiz-/kühlbar, doppelw. |
|
Technische Daten / Maße |
|
|---|---|
| Attribute | Wert |
|
Stückzahl |
1 |
|
Volumen |
4000 Liter |
|
Behälterart |
Lagerbehälter |
|
Zustand |
gebraucht |
|
Bauform |
liegend oberirdisch |
|
Innenbeschichtung |
keine/roh |
|
Durchmesser innen |
1200 mm |
|
Durchmesser außen |
1300 mm |
|
Zylindrische Länge |
3400 mm |
|
Gesamtlänge |
3960 mm |
|
Gesamthöhe |
2000 mm |
|
Betriebsdruck |
drucklos |
|
Betriebstemperatur |
300 Grad Celsius |
|
Material / Beschaffenheit |
|
| Attribute | Wert |
|
Material Innenmantel |
Stahl |
|
Werkstoff Doppelmantel |
Stahl |
|
Werkstoff Füße |
Stahl |
|
Heiz-/Kühlsystem |
|
| Attribute | Wert |
|
Heiz-/Kühlsystem |
1 |
|
Anmerkungen |
Behälter komplett als doppelwandiger, heiz-/kühlbarer Behälter ausgeführt, mit 50 mm Abstand zwischen Innen- und Außenmantel |
|
Ausstattung |
|
| Attribute | Wert |
|
Standform |
Lagerschalen |
|
Anzahl |
2 |
|
Befestigung |
fest |
|
Unterboden |
1 Auslaufrohr DN 40 mit Bogen nach vorne gezogen |
|
Bodenart |
gewölbter Boden |
|
Skizze vorhanden |
1 |
|
Behälterdokumentation vorhanden |
ansonsten gem. Skizze + Fotos |