Lagerbehälter aus GFK, Weinlagerbehälter
| Attribute | Wert |
|
Artikelnummer |
12-035GL |
|
Kurzbezeichnung 1 |
Lagerbehälter aus GFK, Weinlagerbehälter |
|
Technische Daten / Maße |
|
|---|---|
| Attribute | Wert |
|
Stückzahl |
1 |
|
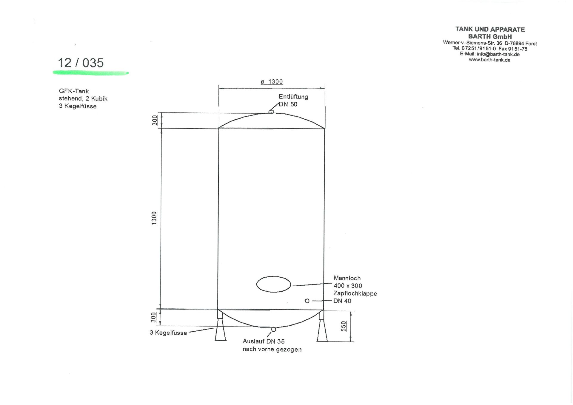
Volumen |
2000 Liter |
|
Behälterart |
Lagerbehälter |
|
Zustand |
gebraucht |
|
Lebensmittelgeeignet |
1 |
|
Bauform |
stehend |
|
Anmerkung |
Weinlagerbehälter |
|
Innenbeschichtung |
keine/roh |
|
Durchmesser außen |
1300 mm |
|
Zylindrische Länge |
1300 mm |
|
Gesamthöhe |
2150 mm |
|
Betriebsdruck |
drucklos |
|
Material / Beschaffenheit |
|
| Attribute | Wert |
|
Werkstoff Füße |
Stahl |
|
Ausstattung |
|
| Attribute | Wert |
|
Standform |
Kegelfüße |
|
Anzahl |
3 |
|
Befestigung |
lose |
|
Unterboden |
1 Flanschstutzen mit Edelstahlauslaufrohr nach vorne gezogen DN 32 |
|
Bodenart oben |
gewölbter Boden |
|
Bodenart unten |
gewölbter Boden |
|
Skizze vorhanden |
1 |
|
Behälterdokumentation vorhanden |
ansonsten gem. Skizze |