Druckbehälter aus Edelstahl (V2A), WSt. 1.4301
| Attribute | Wert |
|
Artikelnummer |
13-145G |
|
Kurzbezeichnung 1 |
Druckbehälter aus Edelstahl (V2A), WSt. 1.4301 |
|
Technische Daten / Maße |
|
|---|---|
| Attribute | Wert |
|
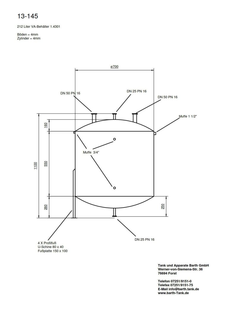
Volumen |
212 Liter |
|
Behälterart |
Drucktank |
|
Zustand |
gebraucht |
|
Bauform |
stehend |
|
Innenbeschichtung |
keine/roh |
|
Oberflächenbehandlung außen |
Bitumen |
|
Farbe Lack |
teilweise beschädigt |
|
Durchmesser außen |
700 mm |
|
Zylindrische Höhe |
550 mm |
|
Gesamthöhe |
1100 mm |
|
Betriebsdruck |
Überdruck |
|
Betriebsdruck |
10 bar |
|
Wandstärke Böden |
4 mm |
|
Wandstärke Mantel/Zylinder |
4 mm |
|
Betriebstemperatur |
50 Grad Celsius |
|
Ausstattung |
|
| Attribute | Wert |
|
Standform |
Profilfüße |
|
Anzahl |
4 |
|
Befestigung |
fest |
|
Unterboden |
1 Flanschstutzen NW 25 |
|
Bodenart oben |
Klöpperboden |
|
Bodenart unten |
Klöpperboden |
|
Zeichnung vorhanden |
1 |
|
Behälterdokumentation vorhanden |
ansonsten gem. Zeichnung |