Lagerbehälter aus Edelstahl (V2A), Chemielagertank
| Attribute | Wert |
|
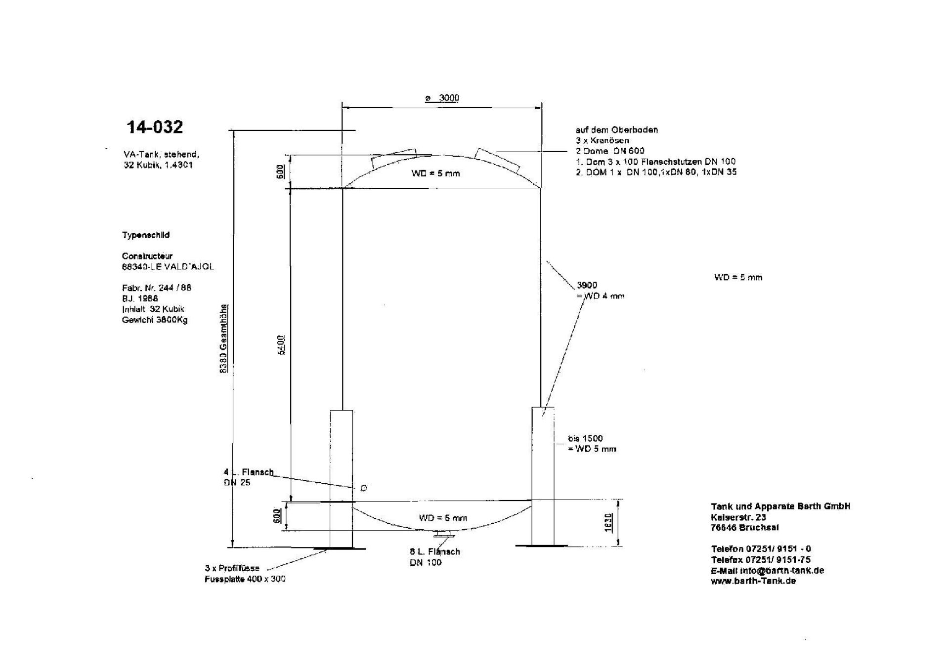
Artikelnummer |
14-032G |
|
Kurzbezeichnung 1 |
Lagerbehälter aus Edelstahl (V2A), Chemielagertank |
|
Technische Daten / Maße |
|
|---|---|
| Attribute | Wert |
|
Stückzahl |
1 |
|
Volumen |
40000 Liter |
|
Behälterart |
Lagerbehälter |
|
Zustand |
gebraucht |
|
Bauform |
stehend |
|
Anmerkung |
Ehem. Chemielagertank |
|
Durchmesser außen |
3000 mm |
|
Zylindrische Höhe |
5400 mm |
|
Gesamthöhe |
8380 mm |
|
Gewicht |
3800 kg |
|
Wandstärke Böden |
5 mm |
|
Wandstärke Mantel/Zylinder |
5 unterer Schuss, Rest 4 mm |
|
Betriebstemperatur |
40 Grad Celsius |
|
Material / Beschaffenheit |
|
| Attribute | Wert |
|
Werkstoff Füße |
Stahl |
|
Ausstattung |
|
| Attribute | Wert |
|
Standform |
Profilfüße |
|
Anzahl |
3 |
|
Befestigung |
fest |
|
Unterboden |
1 Flanschstutzen DN 100 als Auslauf |
|
Bodenart oben |
gewölbter Boden |
|
Bodenart unten |
gewölbter Boden |
|
Skizze vorhanden |
1 |
|
Behälterdokumentation vorhanden |
ansonsten gem. Skizze |
|
Anmerkungen |
Behälter hat um den Zylinder zwei Stahlverstärkungsringe mit 50 mm Höhe und einen Verstärkungsring aus Stahl mit 150 mm Höhe. 32.000 Ltr. auf Typenschild |