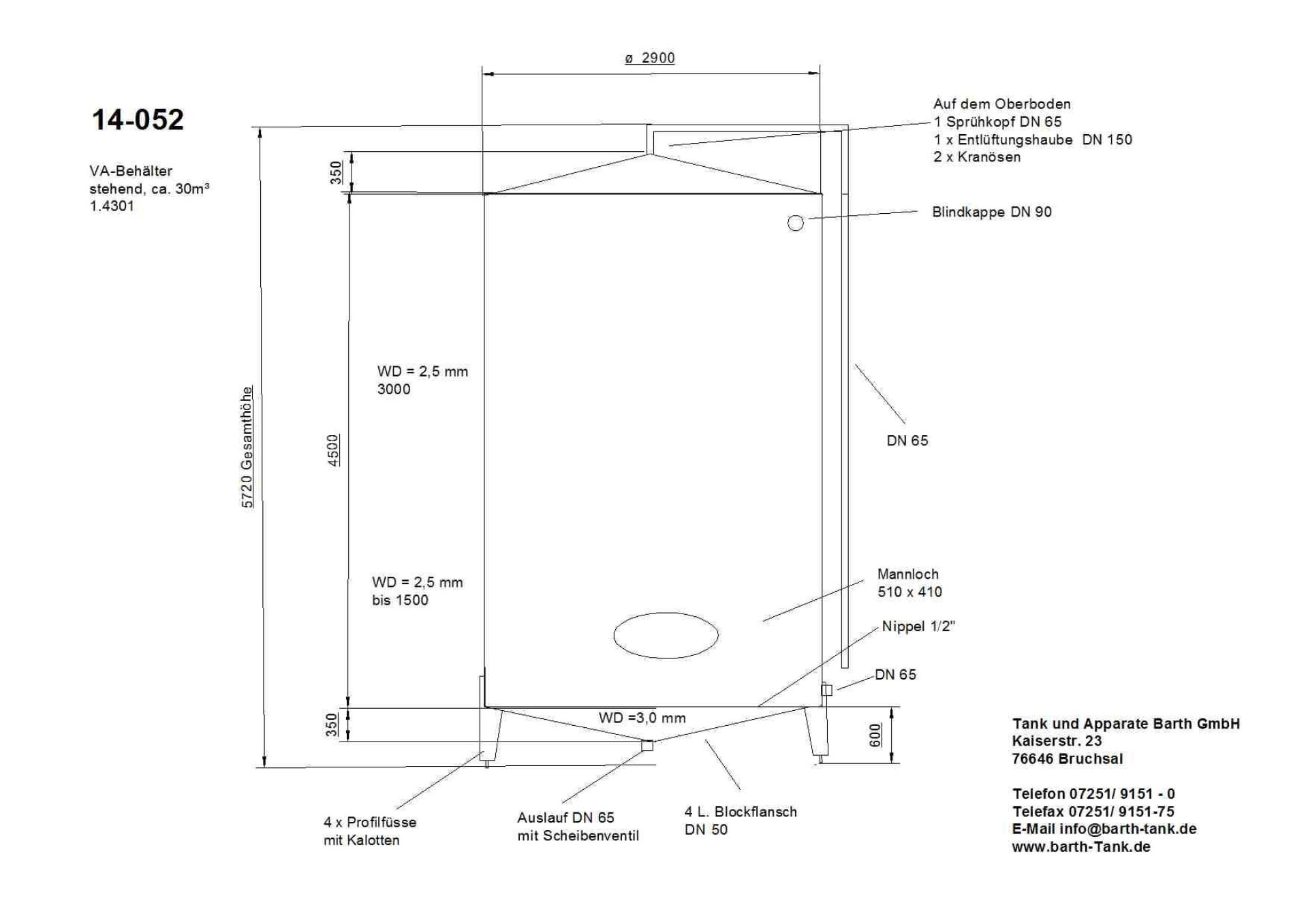
Lagerbehälter aus Edelstahl (V2A), WSt 1.4301
| Attribute | Wert |
|
Artikelnummer |
14-052GL |
|
Kurzbezeichnung 1 |
Lagerbehälter aus Edelstahl (V2A), WSt 1.4301 |
|
Technische Daten / Maße |
|
|---|---|
| Attribute | Wert |
|
Volumen |
30000 Liter |
|
Behälterart |
Lagerbehälter |
|
Zustand |
gebraucht |
|
Lebensmittelgeeignet |
1 |
|
Bauform |
stehend |
|
Anmerkung |
Milchlagerbehälter |
|
Durchmesser außen |
2900 mm |
|
Zylindrische Höhe |
4500 mm |
|
Gesamthöhe |
5720 mm |
|
Betriebsdruck |
drucklos |
|
Wandstärke Böden |
3 mm |
|
Wandstärke Mantel/Zylinder |
25 mm |
|
Ausstattung |
|
| Attribute | Wert |
|
Standform |
Profilfüße |
|
Anzahl |
4 |
|
Befestigung |
fest |
|
Unterboden |
1 Auslaufrohr DN 65 nach vorne gezogen |
|
Bodenart oben |
Kegelboden |
|
Bodenart unten |
Kegelboden |
|
Skizze vorhanden |
1 |
|
Behälterdokumentation vorhanden |
ansonsten gem. Skizze |