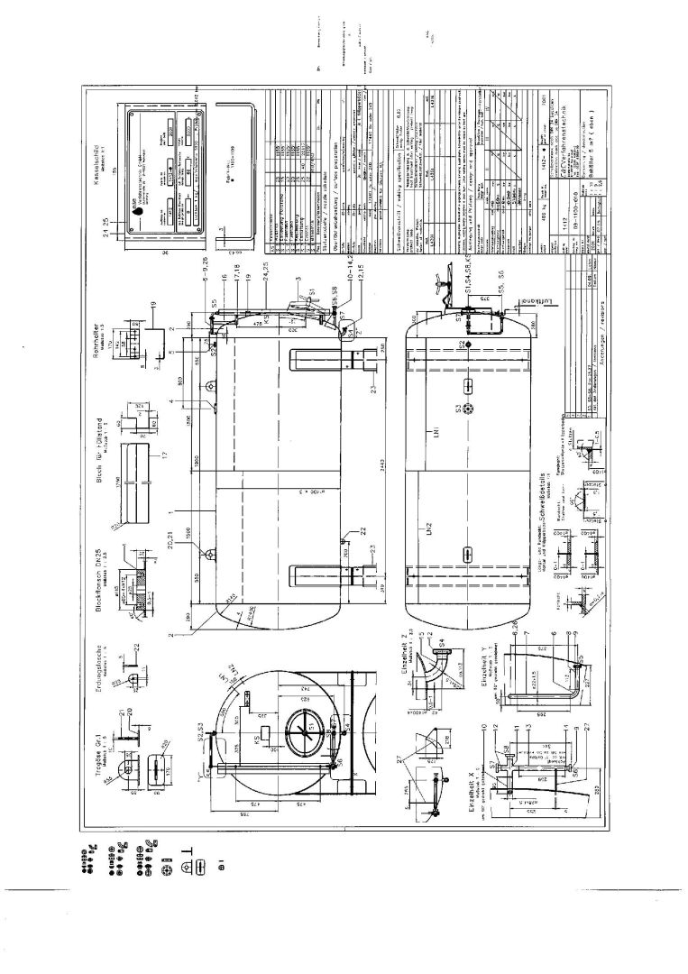
Lagerbehälter aus Edelstahl (V2A), liegend
| Attribute | Wert |
|
Artikelnummer |
14-208G |
|
Kurzbezeichnung 1 |
Lagerbehälter aus Edelstahl (V2A), liegend |
|
Technische Daten / Maße |
|
|---|---|
| Attribute | Wert |
|
Volumen |
5000 Liter |
|
Behälterart |
Lagerbehälter |
|
Zustand |
gebraucht |
|
Bauform |
liegend oberirdisch |
|
Anmerkung |
Behälter mit Dokumentation |
|
Innenbeschichtung |
keine/roh |
|
Durchmesser außen |
1400 mm |
|
Zylindrische Länge |
3000 mm |
|
Gesamtlänge |
3580 mm |
|
Betriebsdruck |
drucklos |
|
Wandstärke Böden |
4 mm |
|
Wandstärke Mantel/Zylinder |
3 mm |
|
Bodenfreiheit |
410 mm |
|
Betriebstemperatur |
60 Grad Celsius |
|
Anmerkungen |
Gesamthöhe zwei Behälter übereinandergesattelt ca. 3.700 mm |
|
Ausstattung |
|
| Attribute | Wert |
|
Standform |
Lagerschalen |
|
Anzahl |
2 |
|
Befestigung |
lose |
|
Füße höhenverstellbar |
1 |
|
Breite |
200 mm |
|
Länge |
1290 mm |
|
Unterboden |
mit Bogen nach vorne gezogen 1 Auslaufstutzen NW 25 |
|
Bodenart |
gewölbter Boden |
|
Zeichnung vorhanden |
1 |
|
Behälterdokumentation vorhanden |
ansonsten gem. Zeichnung |
|
Sonstige |
Behälter mit Dokumentation |
|
Anmerkungen |
Nur die hohen Füße (410 vorne/460 hinten) unten haben ein Gefälle von 50mm.Alle Tanks können auch mit niedrigen Füße ausgerüstet werden,ohne Gefälle.(Bodenfreiheit dann 135mm) Lagerschalen mit eingearbeitetem Gefälle zum Auslauf Je zwei Behälter aufeinandergesattelt. |