Rührwerkbehälter aus Edelstahl (V2A), isoliert
| Attribute | Wert |
|
Artikelnummer |
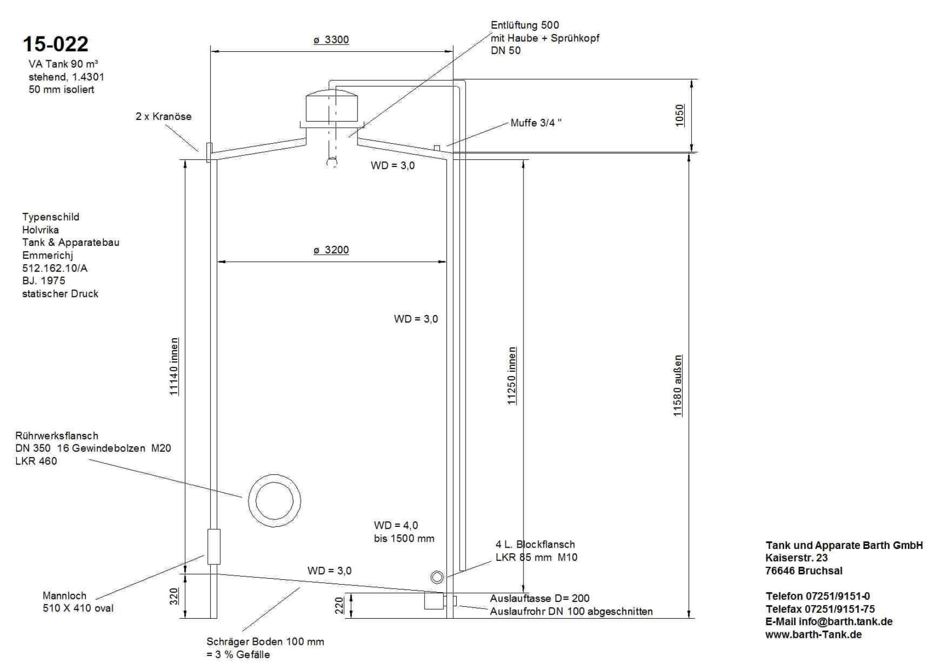
15-022GL |
|
Kurzbezeichnung 1 |
Rührwerkbehälter aus Edelstahl (V2A), isoliert |
|
Technische Daten / Maße |
|
|---|---|
| Attribute | Wert |
|
Stückzahl |
90000 |
|
Volumen |
1 Liter |
|
Behälterart |
Rührwerksbehälter |
|
Zustand |
gebraucht |
|
Lebensmittelgeeignet |
1 |
|
Bauform |
stehend |
|
Anmerkung |
Milchlagerbehälter |
|
Durchmesser innen |
3200 mm |
|
Durchmesser außen |
3300 mm |
|
Zylindrische Höhe |
11140 mm |
|
Gesamthöhe |
12630 mm |
|
Wandstärke Unterboden |
3 mm |
|
Wandstärke Oberboden |
3 mm |
|
Wandstärke Böden |
4 mm |
|
Isolierung |
|
| Attribute | Wert |
|
Isolierung |
1 |
|
Isolierstärke |
50 mm |
|
Material Isoliermantel |
Edelstahl |
|
Isoliermantel |
diffusionsdicht verschweißt |
|
Anmerkungen |
Der Isoliermantel ragt über den schrägen Unterboden hinaus |
|
Ausstattung |
|
| Attribute | Wert |
|
Standform |
Flachboden |
|
Befestigung |
fest |
|
Unterboden |
1 Auslauftasse Ø 200 mm mit Auslaufrohr DN 100 abgeschnitten |
|
Bodenart oben |
Kegelboden |
|
Bodenart unten |
Flachboden |
|
Skizze vorhanden |
1 |
|
Behälterdokumentation vorhanden |
ansonsten gem. Skizze |
|
Rührwerk |
|
| Attribute | Wert |
|
Rührwerk |
1 |