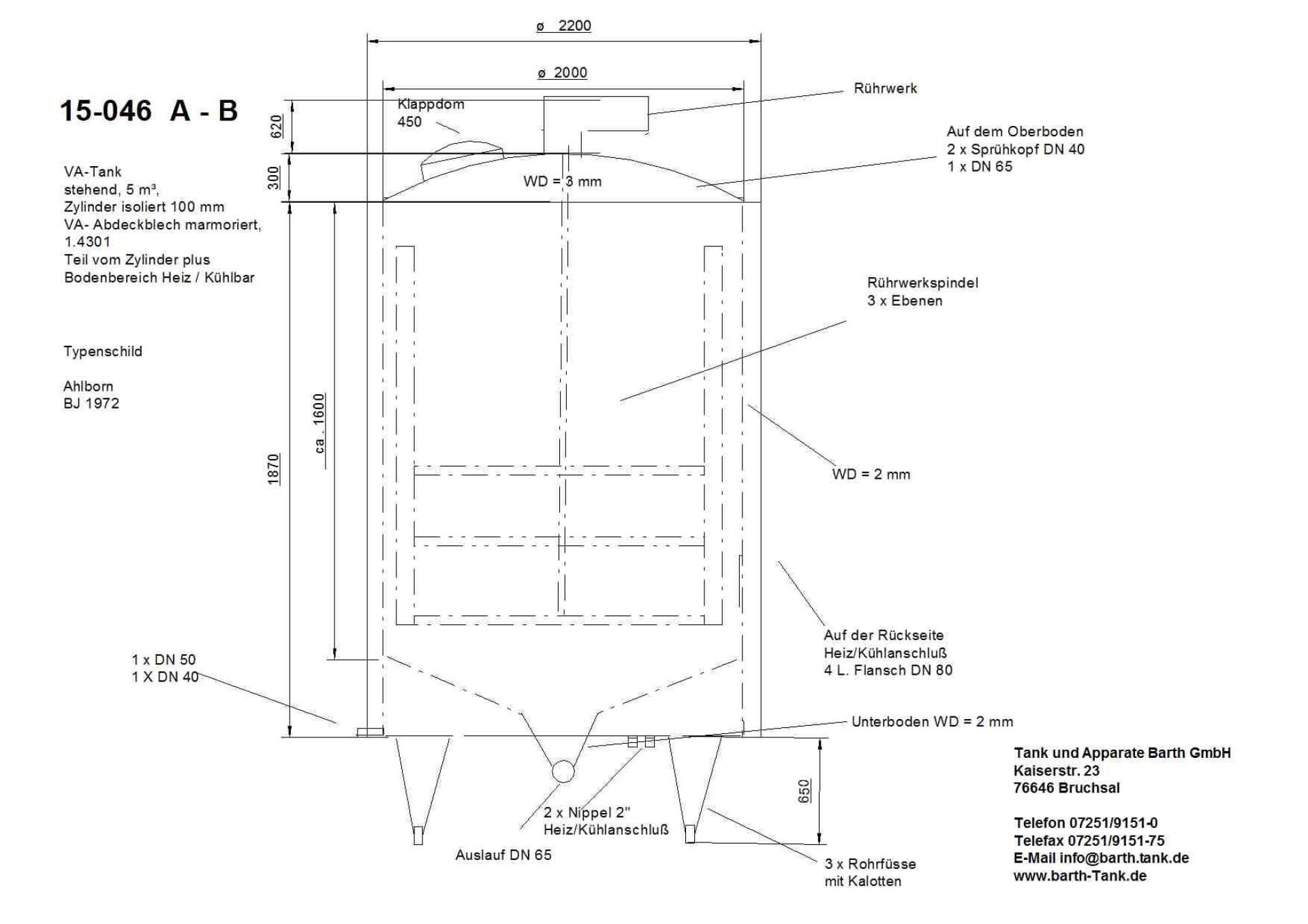
Rührwerkbehälter (V2A), heiz-/kühlbar, isoliert
| Attribute | Wert |
|
Artikelnummer |
15-046A+BGL |
|
Kurzbezeichnung 1 |
Rührwerkbehälter (V2A), heiz-/kühlbar, isoliert |
|
Technische Daten / Maße |
|
|---|---|
| Attribute | Wert |
|
Stückzahl |
1 |
|
Volumen |
5000 Liter |
|
Behälterart |
Rührwerksbehälter |
|
Zustand |
gebraucht |
|
Lebensmittelgeeignet |
1 |
|
Bauform |
stehend |
|
Durchmesser innen |
2000 mm |
|
Durchmesser außen |
2200 mm |
|
Zylindrische Höhe |
1600 mm |
|
Gesamthöhe |
3450 mm |
|
Wandstärke Unterboden |
2 mm |
|
Wandstärke Oberboden |
3 mm |
|
Wandstärke Mantel/Zylinder |
2 mm |
|
Anmerkungen |
ehem. Milchtank / Rahmreifer |
|
Material / Beschaffenheit |
|
| Attribute | Wert |
|
Werkstoff Füße |
V2A-1.4301 |
|
Oberfläche außen |
marmoriert |
|
Heiz-/Kühlsystem |
|
| Attribute | Wert |
|
Heiz-/Kühlsystem |
1 |
|
Zylinder |
Doppelmantel |
|
Unterboden |
Doppelmantel |
|
Kühlmedium |
Wasser |
|
Anmerkungen |
Lediglich die untere Hälfte des Behältermantels ist heiz-/kühlbar. |
|
Isolierung |
|
| Attribute | Wert |
|
Isolierung |
1 |
|
Isolierstärke |
100 mm |
|
Isolier-Material |
PU-Schaum |
|
Material Isoliermantel |
Edelstahl |
|
Isoliermantel |
diffusionsdicht verschweißt |
|
Ausstattung |
|
| Attribute | Wert |
|
Standform |
Rohrfüße |
|
Anzahl |
3 |
|
Unterboden |
1 Auslaufstutzen DN 65, nach vorne gezogen |
|
Bodenart oben |
gewölbter Boden |
|
Bodenart unten |
Kegelboden |
|
Skizze vorhanden |
1 |
|
Behälterdokumentation vorhanden |
ansonsten gem. Skizze |
|
Rührwerk |
|
| Attribute | Wert |
|
Rührwerk |
1 |
|
Klassifikation |
Langsamläufer |
|
Einbau |
von oben |
|
Anzahl der Rührwerkebenen |
3 |