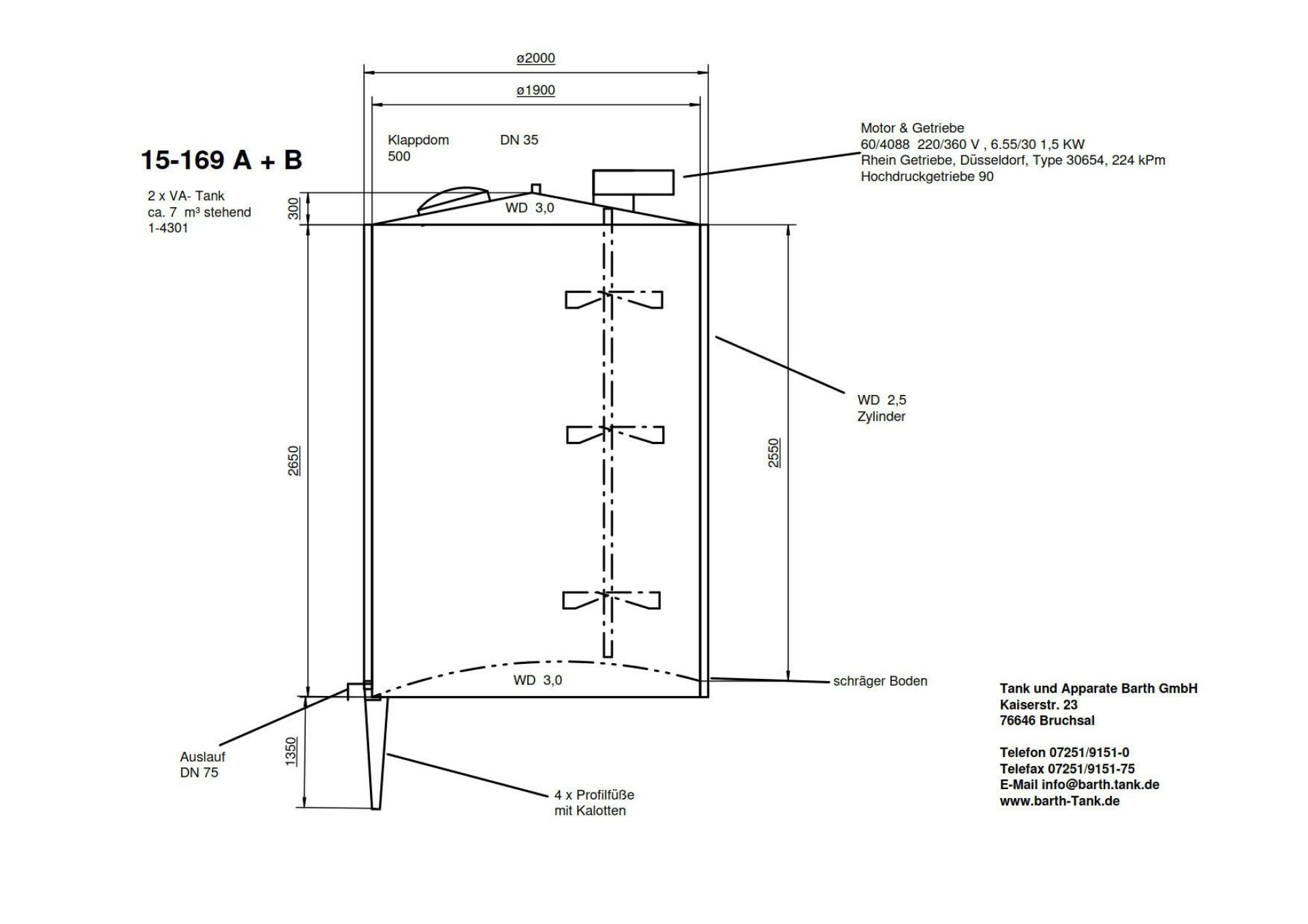
Rührwerkbehälter aus Edelstahl, heiz-/kühlbar
| Attribute | Wert |
|
Artikelnummer |
15-169A+BGL |
|
Kurzbezeichnung 1 |
Rührwerkbehälter aus Edelstahl, heiz-/kühlbar |
|
Technische Daten / Maße |
|
|---|---|
| Attribute | Wert |
|
Stückzahl |
2 |
|
Volumen |
7000 Liter |
|
Behälterart |
Rührwerksbehälter |
|
Zustand |
gebraucht |
|
Lebensmittelgeeignet |
1 |
|
Bauform |
stehend |
|
Durchmesser innen |
1900 mm |
|
Durchmesser außen |
2000 mm |
|
Zylindrische Höhe |
2550 mm |
|
Gesamthöhe |
4500 mm |
|
Wandstärke Böden |
3 mm |
|
Wandstärke Mantel/Zylinder |
25 mm |
|
Bodenfreiheit |
1350 mm |
|
Material / Beschaffenheit |
|
| Attribute | Wert |
|
Werkstoff Füße |
V2A-1.4301 |
|
Isolierung |
|
| Attribute | Wert |
|
Isolierung |
1 |
|
Isolierstärke |
50 mm |
|
Material Isoliermantel |
Edelstahl |
|
Isoliermantel |
diffusionsdicht verschweißt |
|
Ausstattung |
|
| Attribute | Wert |
|
Standform |
Profilfüße |
|
Anzahl |
4 |
|
Bodenart oben |
Kegelboden |
|
Bodenart unten |
nach innen gewölbter Bode |
|
Skizze vorhanden |
1 |
|
Behälterdokumentation vorhanden |
ansonsten gem. Skizze |
|
Rührwerk |
|
| Attribute | Wert |
|
Rührwerk |
1 |
|
Klassifikation |
Langsamläufer |
|
Anzahl |
1 |
|
Einbau |
von oben |
|
Rührwerkleistung |
15 kW |
|
Anzahl der Rührwerkebenen |
3 |
|
Hersteller |
Rhein Getriebe Düsseldorf |