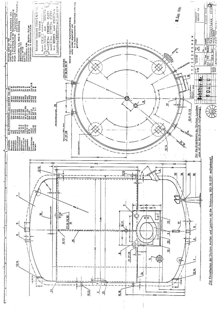
Druck-/ Rührwerksbehälter aus Stahl, heiz-/kühlbar
| Attribute | Wert |
|
Artikelnummer |
16-00138A+BGLE |
|
Kurzbezeichnung 1 |
Druck-/ Rührwerksbehälter aus Stahl, heiz-/kühlbar |
|
Technische Daten / Maße |
|
|---|---|
| Attribute | Wert |
|
Stückzahl |
2 |
|
Volumen |
23000 Liter |
|
Behälterart |
Drucktank |
|
Zustand |
gebraucht |
|
Lebensmittelgeeignet |
1 |
|
Bauform |
stehend |
|
Anmerkung |
Sektdrucktank |
|
Innenbeschichtung |
beschichtet |
|
Innenauskleidung - Umfang |
vollständig |
|
Spezifikation |
Epoxidharzbeschichtet |
|
Durchmesser innen |
2800 mm |
|
Durchmesser außen |
3000 mm |
|
Zylindrische Höhe |
2950 mm |
|
Gesamthöhe |
4700 mm |
|
Gewicht |
6055 kg |
|
Betriebsdruck |
Überdruck |
|
Betriebsdruck |
8 bar |
|
Prüfdruck |
104 bar |
|
Wandstärke Böden |
14 mm |
|
Wandstärke Mantel/Zylinder |
14 mm |
|
Heiz-/Kühlsystem |
|
| Attribute | Wert |
|
Heiz-/Kühlsystem |
1 |
|
Zylinder |
Doppelmantel |
|
Betriebsdruck |
2 bar |
|
Anmerkungen |
Am zylindrischen Teil ein Doppelmantel als Kühlmantel ca. 2.200 mm hoch |
|
Isolierung |
|
| Attribute | Wert |
|
Isolierung |
1 |
|
Isolierstärke |
100 mm |
|
Material Isoliermantel |
Edelstahl |
|
Isoliermantel |
verschraubt/genietet |
|
Anmerkungen |
Behälter außen komplett isoliert ca. 100 mm, mit verschraubtem Edelstahl-Abdeckblech |
|
Ausstattung |
|
| Attribute | Wert |
|
Standform |
Kegelfüße |
|
Anzahl |
4 |
|
Befestigung |
lose |
|
Unterboden |
1 Flanschstutzen NW 50 nach vorne gezogen |
|
Bodenart oben |
Klöpperboden |
|
Bodenart unten |
Klöpperboden |
|
Zeichnung vorhanden |
1 |
|
Behälterdokumentation vorhanden |
ansonsten gem. Zeichnung |
|
Rührwerk |
|
| Attribute | Wert |
|
Rührwerk |
1 |
|
Einbau |
seitlich |