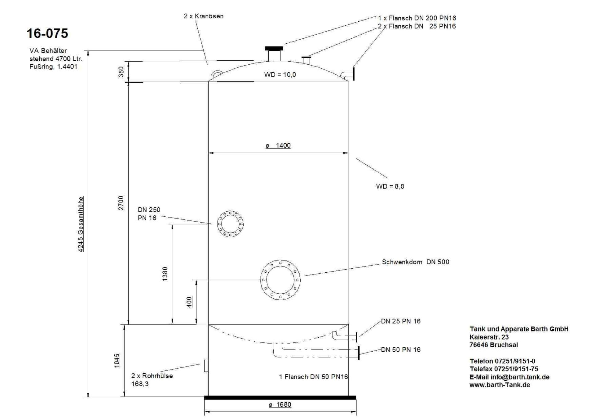
Druckbehälter aus Edelstahl (V4A), WSt. 1.4401
| Attribute | Wert |
|
Artikelnummer |
16-075G |
|
Kurzbezeichnung 1 |
Druckbehälter aus Edelstahl (V4A), WSt. 1.4401 |
|
Technische Daten / Maße |
|
|---|---|
| Attribute | Wert |
|
Stückzahl |
1 |
|
Volumen |
4700 Liter |
|
Behälterart |
Drucktank |
|
Zustand |
gebraucht |
|
Bauform |
stehend |
|
Durchmesser innen |
1400 mm |
|
Zylindrische Höhe |
2700 mm |
|
Gesamthöhe |
4250 mm |
|
Gewicht |
1500 kg |
|
Betriebsdruck |
Überdruck |
|
Betriebsdruck |
6 bar |
|
Prüfdruck |
95 bar |
|
Betriebstemperatur |
150 Grad Celsius |
|
Ausstattung |
|
| Attribute | Wert |
|
Standform |
Fußring/Standzarge |
|
Anzahl |
1 |
|
Befestigung |
fest |
|
Bodenart oben |
Klöpperboden |
|
Bodenart unten |
Klöpperboden |
|
Behälterdokumentation vorhanden |
ansonsten gem. Skizze |