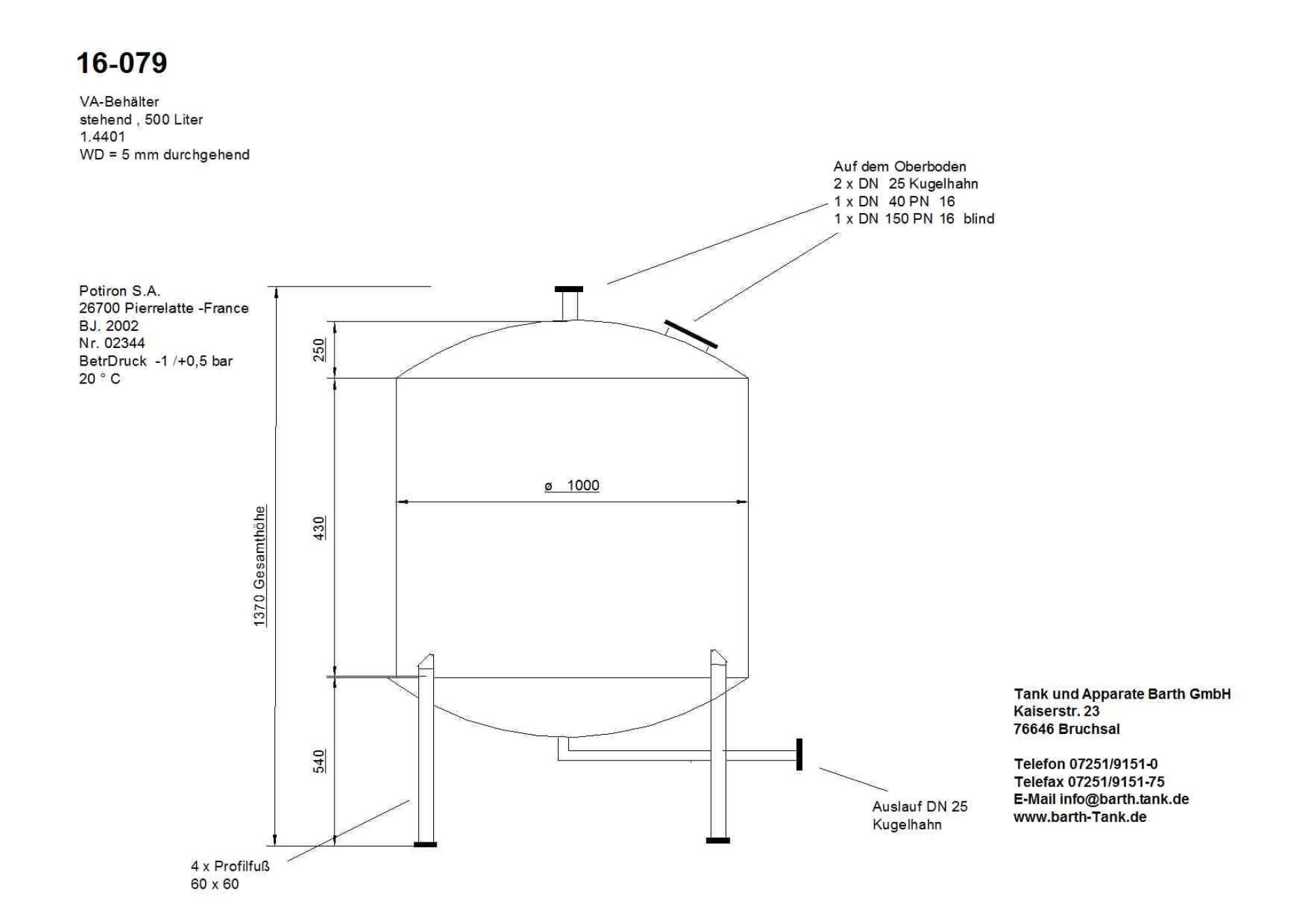
Druck-/Unterdruckbehälter aus Edelstahl (V4A)
| Attribute | Wert |
|
Artikelnummer |
16-079G |
|
Kurzbezeichnung 1 |
Druck-/Unterdruckbehälter aus Edelstahl (V4A) |
|
Technische Daten / Maße |
|
|---|---|
| Attribute | Wert |
|
Stückzahl |
1 |
|
Volumen |
500 Liter |
|
Behälterart |
Drucktank |
|
Zustand |
gebraucht |
|
Bauform |
stehend |
|
Anmerkung |
Druck-/Unterdruckbehälter |
|
Durchmesser innen |
1000 mm |
|
Zylindrische Höhe |
430 mm |
|
Gesamthöhe |
1370 mm |
|
Gewicht |
200 kg |
|
Betriebsdruck |
Überdruck/Unterdruck |
|
Betriebsdruck |
-1 bar |
|
Wandstärke Böden |
5 mm |
|
Wandstärke Mantel/Zylinder |
5 mm |
|
Betriebstemperatur |
max 200 Grad Celsius |
|
Material / Beschaffenheit |
|
| Attribute | Wert |
|
Werkstoff Füße |
Edelstahl |
|
Staplertaschen vorhanden |
1 |
|
Ausstattung |
|
| Attribute | Wert |
|
Standform |
Profilfüße |
|
Anzahl |
4 |
|
Befestigung |
fest |
|
Unterboden |
1 Auslaufrohr mit Bogen nach vorne gezogen mit Flansch DN 25 |
|
Bodenart oben |
Klöpperboden |
|
Bodenart unten |
Klöpperboden |
|
Skizze vorhanden |
1 |
|
Behälterdokumentation vorhanden |
ansonsten gem. Skizze |