Transportbehälter aus Edelstahl (V2A)
| Attribute | Wert |
|
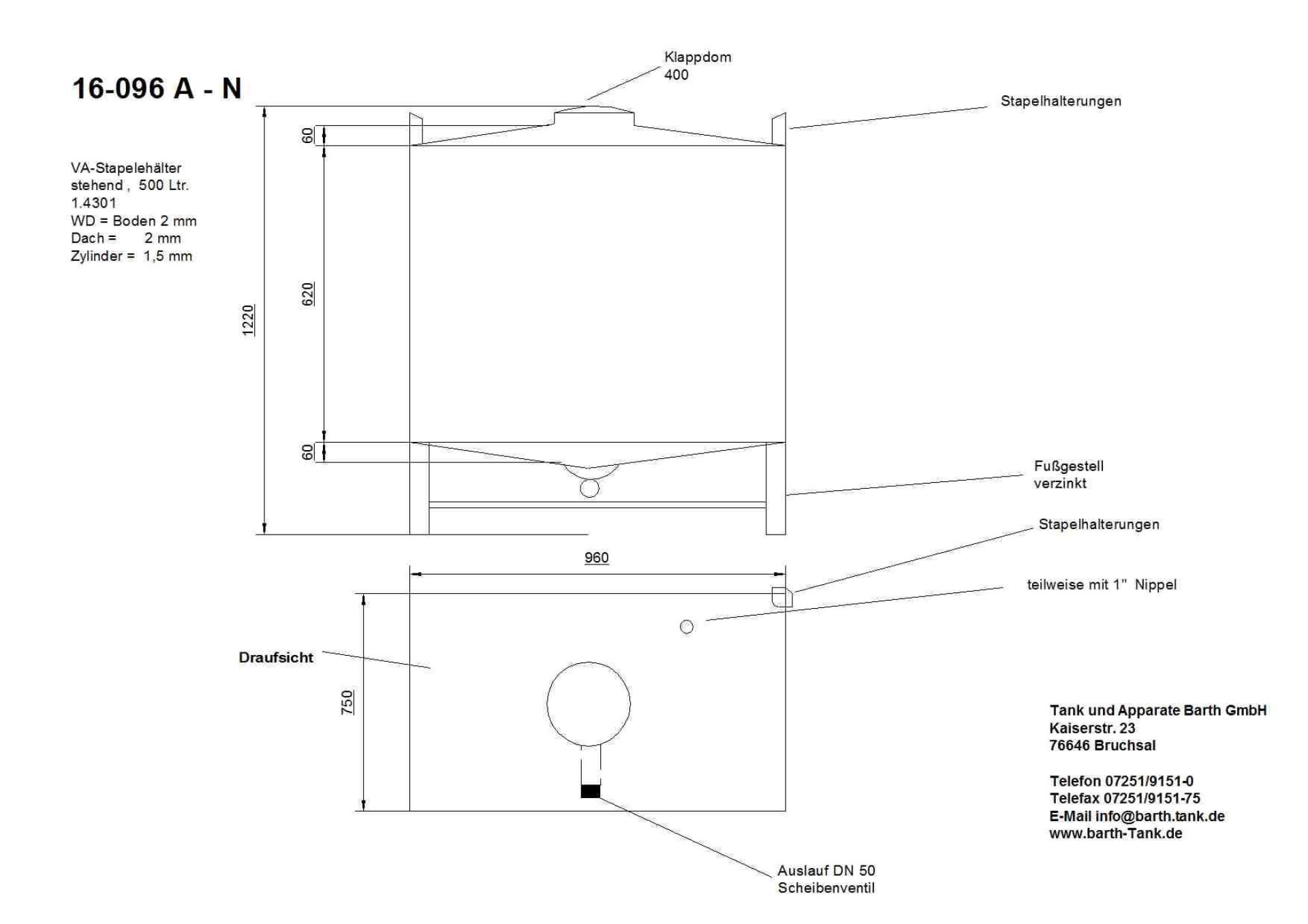
Artikelnummer |
16-096A-NGL |
|
Kurzbezeichnung 1 |
Transportbehälter aus Edelstahl (V2A) |
|
Technische Daten / Maße |
|
|---|---|
| Attribute | Wert |
|
Stückzahl |
1 |
|
Volumen |
500 Liter |
|
Behälterart |
Transportbehälter |
|
Zustand |
gebraucht |
|
Lebensmittelgeeignet |
1 |
|
Bauform |
rechteckig/kubisch |
|
Anmerkung |
Drucklos mit verzinktem Untergestell |
|
Durchmesser innen |
500 mm |
|
Gesamthöhe |
1220 mm |
|
Breite |
960 mm |
|
Tiefe |
750 mm |
|
Betriebsdruck |
drucklos |
|
Wandstärke Böden |
2 mm |
|
Wandstärke Mantel/Zylinder |
15 mm |
|
Material / Beschaffenheit |
|
| Attribute | Wert |
|
Werkstoff Füße |
V2A (1.4301) |
|
Stapelbar |
1 |
|
Staplertaschen vorhanden |
1 |
|
Ausstattung |
|
| Attribute | Wert |
|
Standform |
verzinktes Stahlrahmengestell |
|
Befestigung |
fest |
|
Unterboden |
1 Auslauftasse mit nach vorne gezogenem Auslaufrohr NW 50 |
|
Bodenart oben |
gewölbter Boden |
|
Bodenart unten |
gewölbter Boden |
|
Skizze vorhanden |
1 |
|
Behälterdokumentation vorhanden |
ansonsten gem. Skizze |