Gebrauchtbehälter

js_function_caller_helper

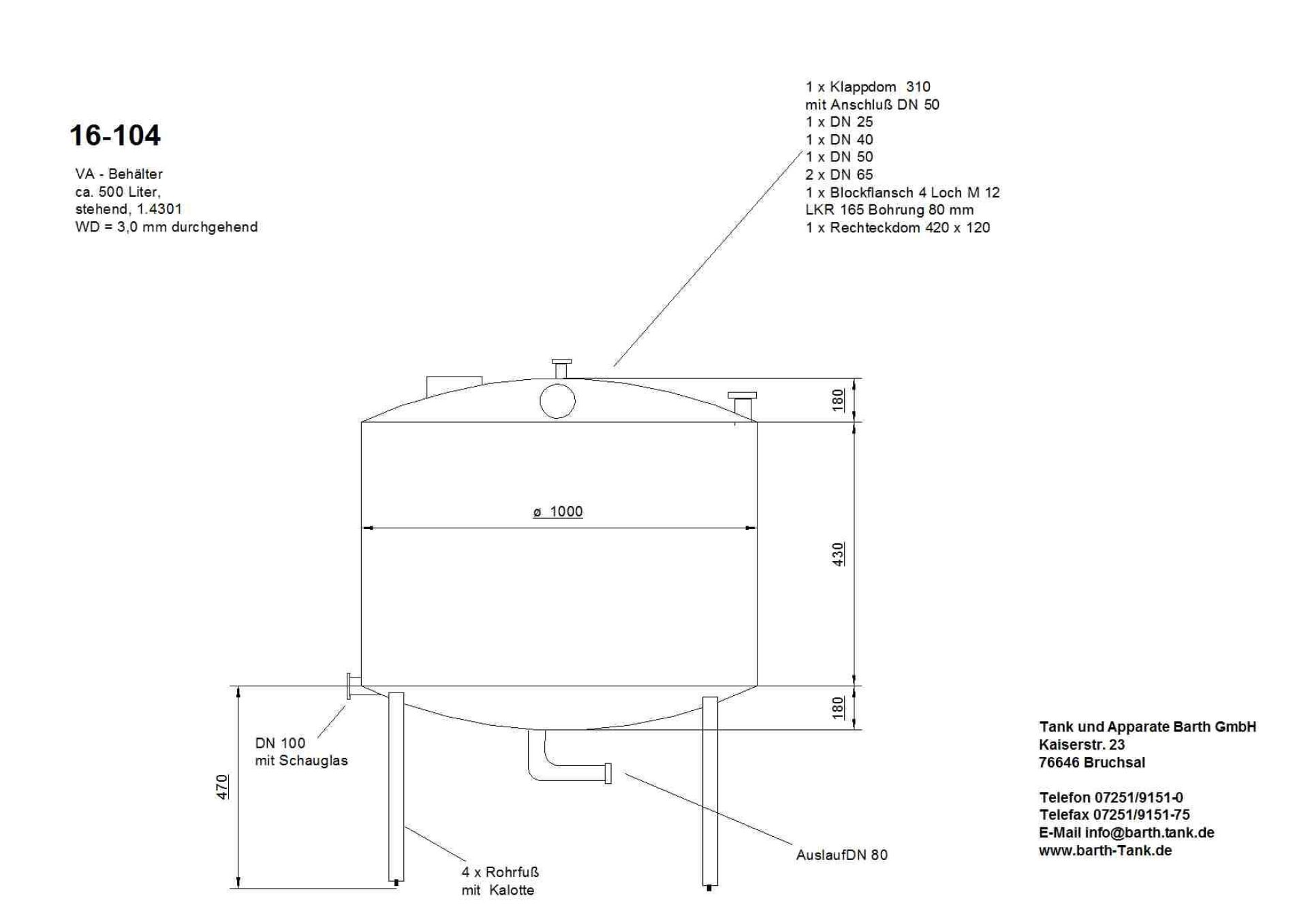
16-104GL

 
 
js_function_caller_helper
 

Lagerbehälter aus Edelstahl (V2A)

Attribute Wert
Artikelnummer
16-104GL
Kurzbezeichnung 1

Lagerbehälter aus Edelstahl (V2A)

Technische Daten / Maße
Attribute Wert
Stückzahl
1
Volumen
500 Liter
Behälterart
Lagerbehälter
Zustand
gebraucht
Lebensmittelgeeignet
1
Bauform
stehend
Durchmesser innen
1000 mm
Zylindrische Höhe
430 mm
Gesamthöhe
1100 mm
Betriebsdruck
drucklos
Ausstattung
Attribute Wert
Standform
Kalottenfüße
Anzahl
4
Befestigung
fest
Fußhöhe
470 mm
Unterboden

am Übergang Mantel - Unterboden:
1 Gewindestutzen DN 100 mit Schauglas
in der Mitte des Unterbodens:
1 Auslaufrohr DN 80 mit Bogen nach vorne geführt, mit Gewindestutzen

Bodenart oben
gewölbter Boden
Bodenart unten
gewölbter Boden
Skizze vorhanden
1
Behälterdokumentation vorhanden
ansonsten gem. Skizze