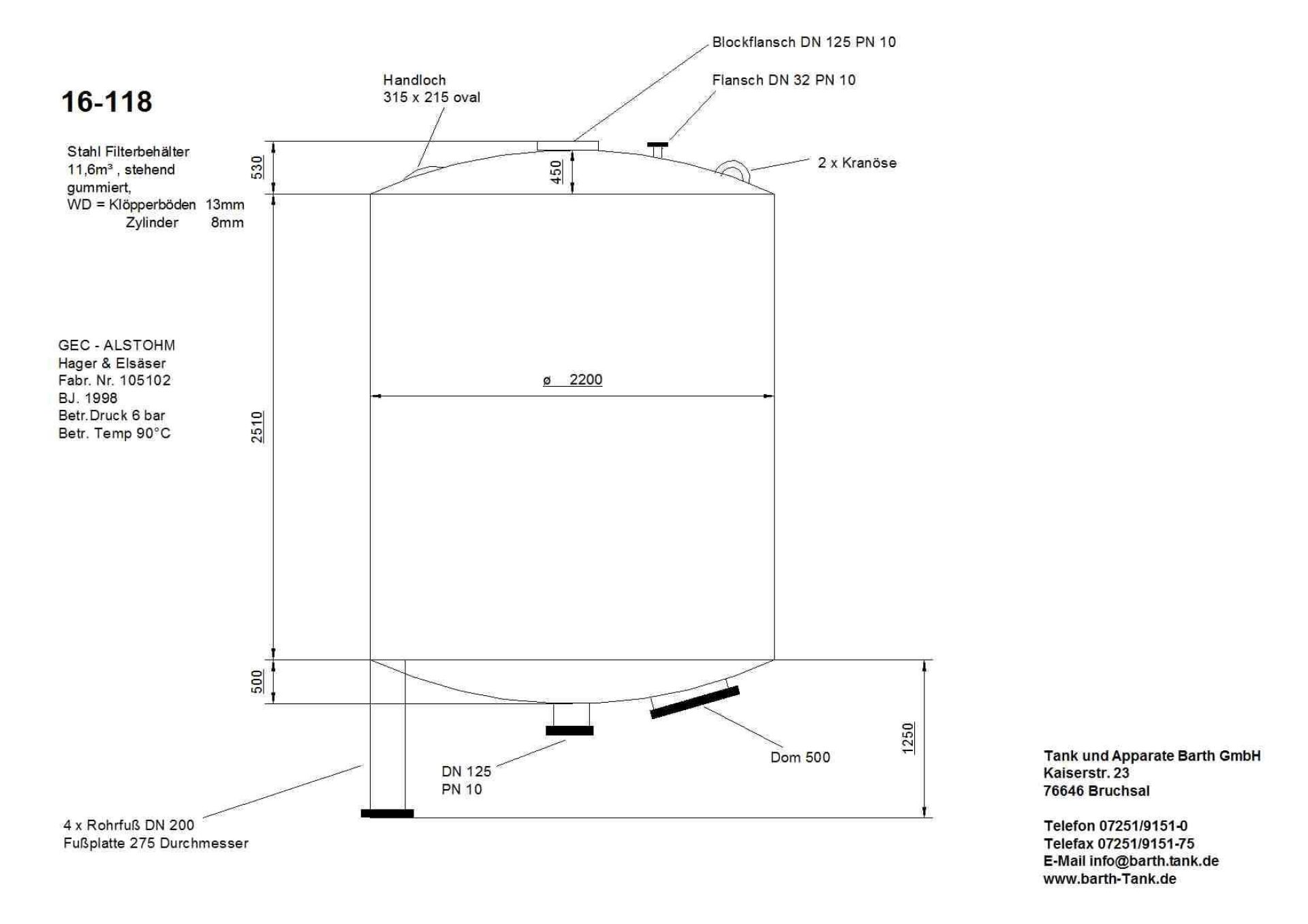
Druckbehälter aus Stahl, Filterbehälter gummiert
| Attribute | Wert |
|
Artikelnummer |
16-118G |
|
Kurzbezeichnung 1 |
Druckbehälter aus Stahl, Filterbehälter gummiert |
|
Technische Daten / Maße |
|
|---|---|
| Attribute | Wert |
|
Stückzahl |
1 |
|
Volumen |
11600 Liter |
|
Behälterart |
Drucktank |
|
Zustand |
gebraucht |
|
Bauform |
stehend |
|
Innenbeschichtung |
gummiert |
|
Innenauskleidung - Umfang |
vollständig |
|
Oberflächenbehandlung außen |
lackiert |
|
Farbe Lack |
Grau |
|
Durchmesser innen |
2200 mm |
|
Zylindrische Höhe |
2510 mm |
|
Gesamthöhe |
4300 mm |
|
Betriebsdruck |
Überdruck |
|
Betriebsdruck |
6 bar |
|
Wandstärke Böden |
13 mm |
|
Wandstärke Mantel/Zylinder |
8 mm |
|
Betriebstemperatur |
90 Grad Celsius |
|
Material / Beschaffenheit |
|
| Attribute | Wert |
|
Werkstoff Füße |
Stahl |
|
Ausstattung |
|
| Attribute | Wert |
|
Standform |
Rohrfüße |
|
Anzahl |
4 |
|
Befestigung |
fest |
|
Unterboden |
1 Mannloch DN 500 |
|
Bodenart oben |
Klöpperboden |
|
Bodenart unten |
Klöpperboden |
|
Skizze vorhanden |
1 |
|
Behälterdokumentation vorhanden |
ansonsten gem. Skizze |
|
Anmerkungen |
Behälter hat einen eingeschweißten Düsenboden |