Rührwerkbehälter aus Edelstahl (V2A), WSt. 1.4301
| Attribute | Wert |
|
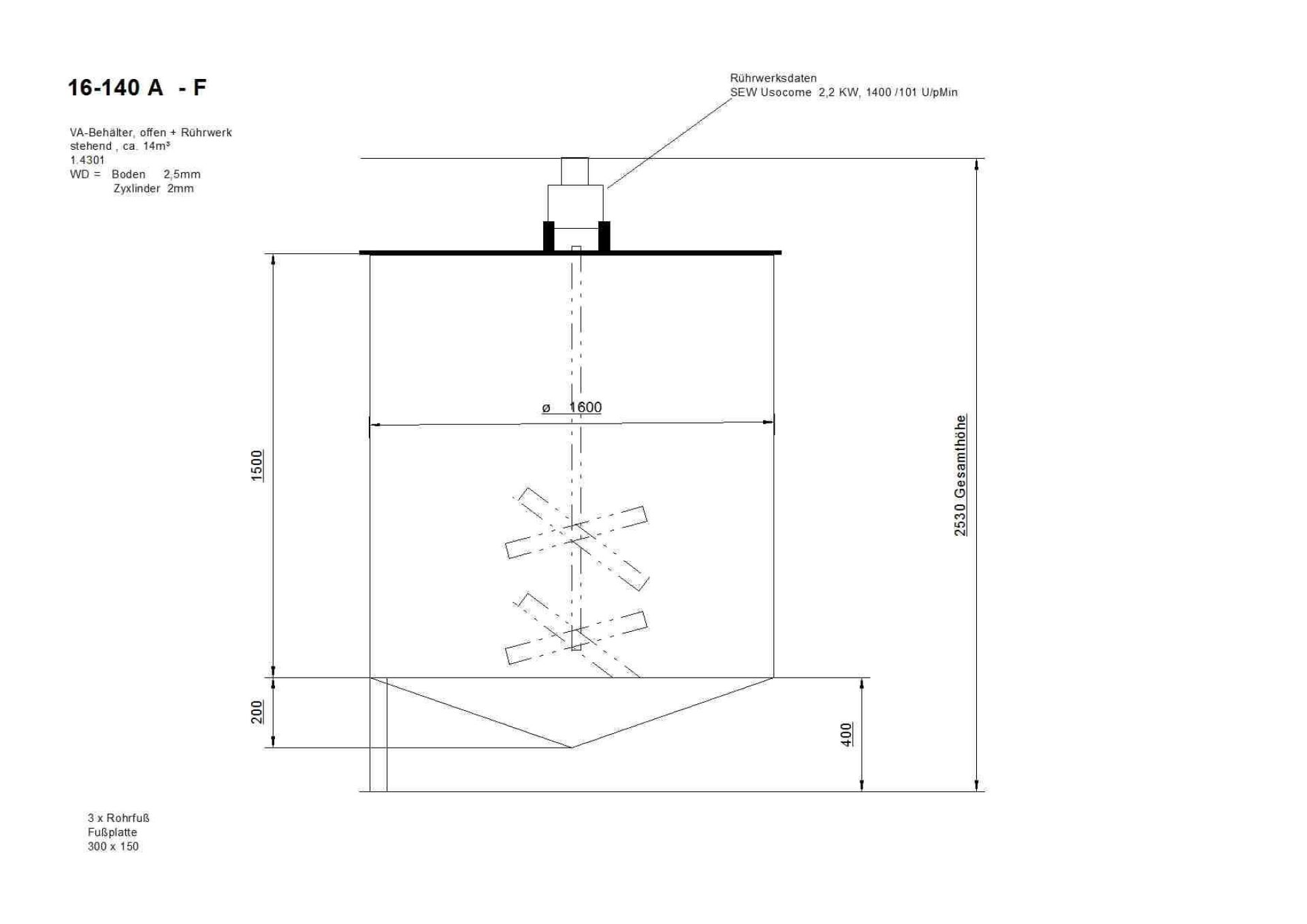
Artikelnummer |
16-140A-FG |
|
Kurzbezeichnung 1 |
Rührwerkbehälter aus Edelstahl (V2A), WSt. 1.4301 |
|
Technische Daten / Maße |
|
|---|---|
| Attribute | Wert |
|
Stückzahl |
6 |
|
Volumen |
3000 Liter |
|
Behälterart |
Rührwerksbehälter |
|
Zustand |
gebraucht |
|
Bauform |
stehend |
|
Durchmesser innen |
1600 mm |
|
Zylindrische Höhe |
1500 mm |
|
Gesamthöhe |
2530 mm |
|
Betriebsdruck |
drucklos |
|
Wandstärke Böden |
25 mm |
|
Wandstärke Mantel/Zylinder |
2 mm |
|
Ausstattung |
|
| Attribute | Wert |
|
Standform |
Profilfüße |
|
Anzahl |
3 |
|
Bodenart oben |
offen |
|
Bodenart unten |
Kegelboden |
|
Skizze vorhanden |
1 |
|
Behälterdokumentation vorhanden |
ansonsten gem. Skizze |
|
Anmerkungen |
Mit Winkelrahmen |
|
Rührwerk |
|
| Attribute | Wert |
|
Rührwerk |
1 |
|
Art des Rührwerks |
Schrägblattrührer |
|
Anzahl |
1 |
|
Einbau |
von oben |
|
Geschwindigkeit |
1400 Umdrehungen/Mute |
|
Rührwerkleistung |
22 kW |
|
Anzahl der Rührwerkebenen |
2 |