Lagerbehälter aus Edelstahl (V2A), oben offen
| Attribute | Wert |
|
Artikelnummer |
16-141G |
|
Kurzbezeichnung 1 |
Lagerbehälter aus Edelstahl (V2A), oben offen |
|
Technische Daten / Maße |
|
|---|---|
| Attribute | Wert |
|
Stückzahl |
1 |
|
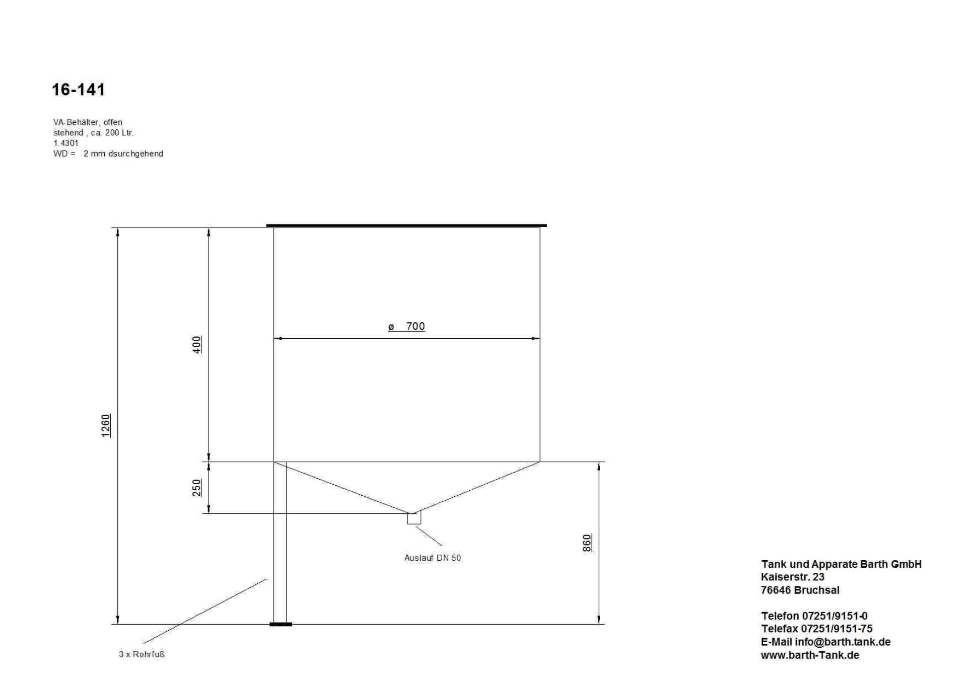
Volumen |
200 Liter |
|
Behälterart |
Lagerbehälter |
|
Zustand |
gebraucht |
|
Bauform |
stehend |
|
Innenbeschichtung |
keine/roh |
|
Durchmesser innen |
700 mm |
|
Zylindrische Höhe |
400 mm |
|
Gesamthöhe |
1260 mm |
|
Wandstärke Böden |
2 mm |
|
Wandstärke Mantel/Zylinder |
2 mm |
|
Material / Beschaffenheit |
|
| Attribute | Wert |
|
Werkstoff Füße |
Edelstahl |
|
Ausstattung |
|
| Attribute | Wert |
|
Standform |
Rohrfüße |
|
Anzahl |
3 |
|
Befestigung |
fest |
|
Unterboden |
1 Auslaufstutzen DN 50 mit Verlängerungsrohr |
|
Bodenart oben |
offen |
|
Bodenart unten |
Konusboden |
|
Skizze vorhanden |
1 |