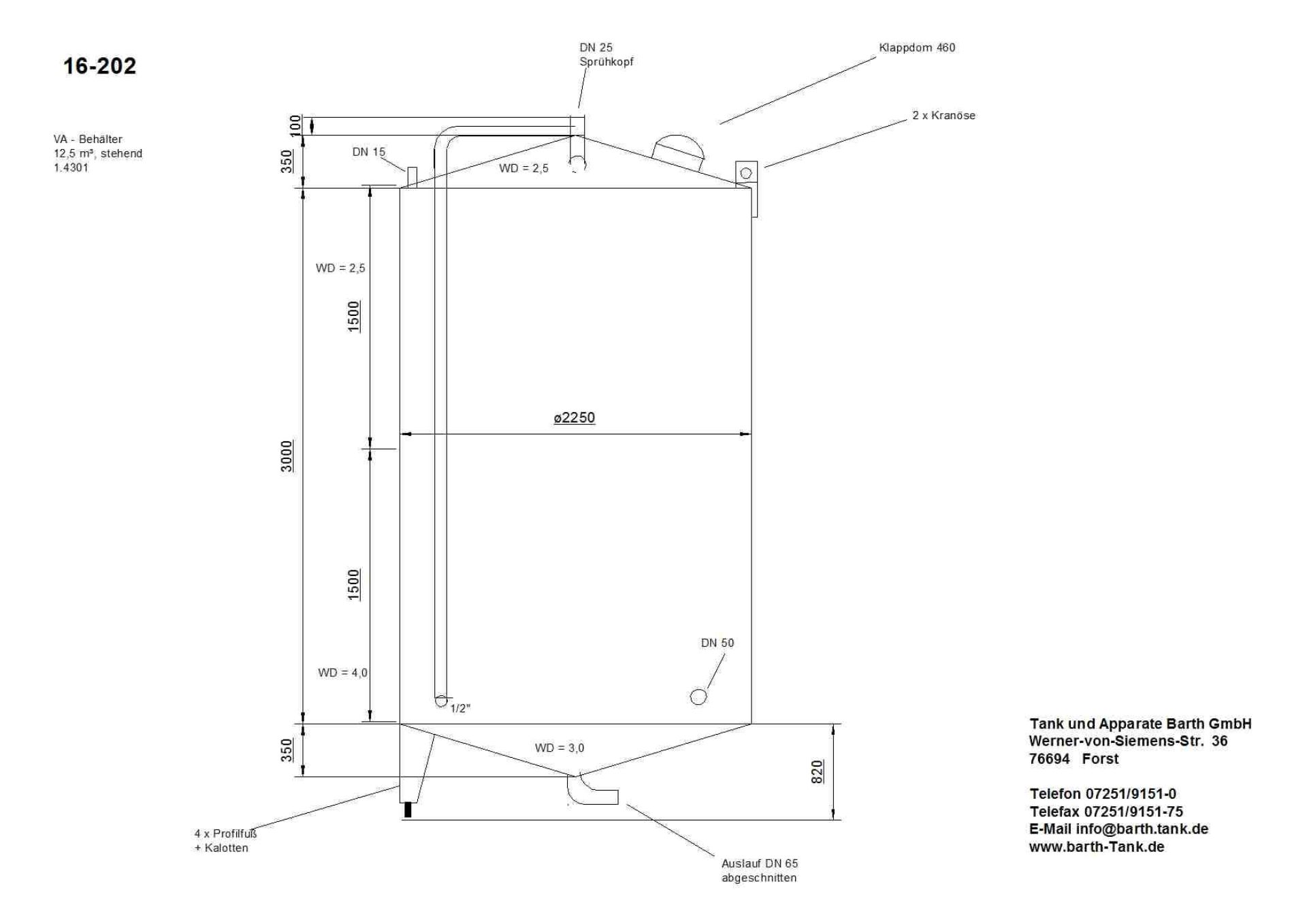
Lagerbehälter aus Edelstahl (V2A), WSt. 1.4301
| Attribute | Wert |
|
Artikelnummer |
16-202GL |
|
Kurzbezeichnung 1 |
Lagerbehälter aus Edelstahl (V2A), WSt. 1.4301 |
|
Technische Daten / Maße |
|
|---|---|
| Attribute | Wert |
|
Stückzahl |
1 |
|
Volumen |
12500 Liter |
|
Behälterart |
Lagerbehälter |
|
Zustand |
gebraucht |
|
Lebensmittelgeeignet |
1 |
|
Bauform |
stehend |
|
Durchmesser außen |
2250 mm |
|
Zylindrische Höhe |
3000 mm |
|
Gesamthöhe |
4270 mm |
|
Gewicht |
600 kg |
|
Betriebsdruck |
drucklos |
|
Wandstärke Unterboden |
3 mm |
|
Wandstärke Oberboden |
25 mm |
|
Wandstärke Mantel/Zylinder |
4 mm |
|
Material / Beschaffenheit |
|
| Attribute | Wert |
|
Werkstoff Füße |
Edelstahl |
|
Schweißnähte innen verschliffen |
1 |
|
Ausstattung |
|
| Attribute | Wert |
|
Standform |
Profilfüße |
|
Anzahl |
4 |
|
Befestigung |
fest |
|
Unterboden |
1 Auslaufstutzen mit Bogen DN 65 abgeschnitten |
|
Bodenart oben |
Kegelboden |
|
Bodenart unten |
Kegelboden |
|
Skizze vorhanden |
1 |
|
Behälterdokumentation vorhanden |
ansonsten gem. Skizze |
|
Armaturen vorhanden |
1 |