Rührwerksbehälter aus Edelstahl V2A, kühl-/heizbar
| Attribute | Wert |
|
Artikelnummer |
16-226G |
|
Kurzbezeichnung 1 |
Rührwerksbehälter aus Edelstahl V2A, kühl-/heizbar |
|
Technische Daten / Maße |
|
|---|---|
| Attribute | Wert |
|
Stückzahl |
1 |
|
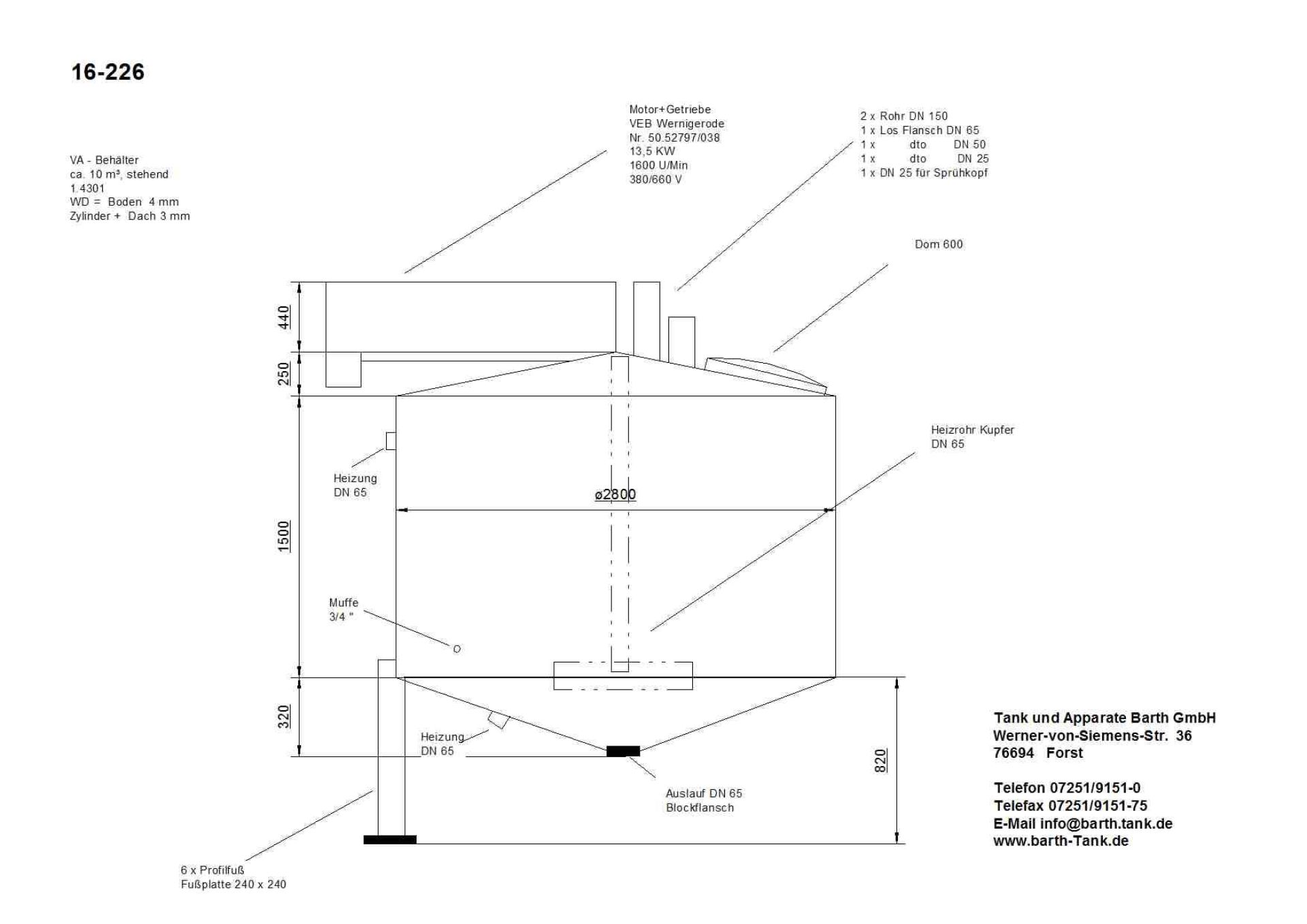
Volumen |
10000 Liter |
|
Behälterart |
Rührwerksbehälter |
|
Zustand |
gebraucht |
|
Lebensmittelgeeignet |
1 |
|
Bauform |
stehend |
|
Anmerkung |
Kühl-/heizbar |
|
Durchmesser innen |
2800 mm |
|
Zylindrische Höhe |
1500 mm |
|
Gesamthöhe |
3000 mm |
|
Betriebsdruck |
drucklos |
|
Wandstärke Unterboden |
4 mm |
|
Wandstärke Oberboden |
3 mm |
|
Wandstärke Mantel/Zylinder |
3 mm |
|
Material / Beschaffenheit |
|
| Attribute | Wert |
|
Werkstoff Füße |
Edelstahl |
|
Heiz-/Kühlsystem |
|
| Attribute | Wert |
|
Heiz-/Kühlsystem |
1 |
|
Zylinder |
Rohrschlangen innen |
|
Unterboden |
Rohrschlangen innen |
|
Werkstoff Heiz-/Kühlsystem |
Kupfer |
|
Anmerkungen |
Behälter hat über dem Boden und über den Mantel eine Rohrschlange DN 65 aus Kupfer |
|
Ausstattung |
|
| Attribute | Wert |
|
Standform |
Profilfüße |
|
Anzahl |
6 |
|
Befestigung |
fest |
|
Unterboden |
1 Blockflansch als Auslauf DN 65 |
|
Bodenart oben |
Kegelboden |
|
Bodenart unten |
Kegelboden |
|
Skizze vorhanden |
1 |
|
Behälterdokumentation vorhanden |
ansonsten gem. Skizze |
|
Rührwerk |
|
| Attribute | Wert |
|
Rührwerk |
1 |
|
Geschwindigkeit |
1460 Umdrehungen/Mute |
|
Rührwerkleistung |
135 kW |
|
Hersteller |
VEB Elektromotorenwerk |
|
Typ |
KMER 160 L4 ACP |