Lagerbehälter aus Edelstahl (V2A), WSt. 1.4301
| Attribute | Wert |
|
Artikelnummer |
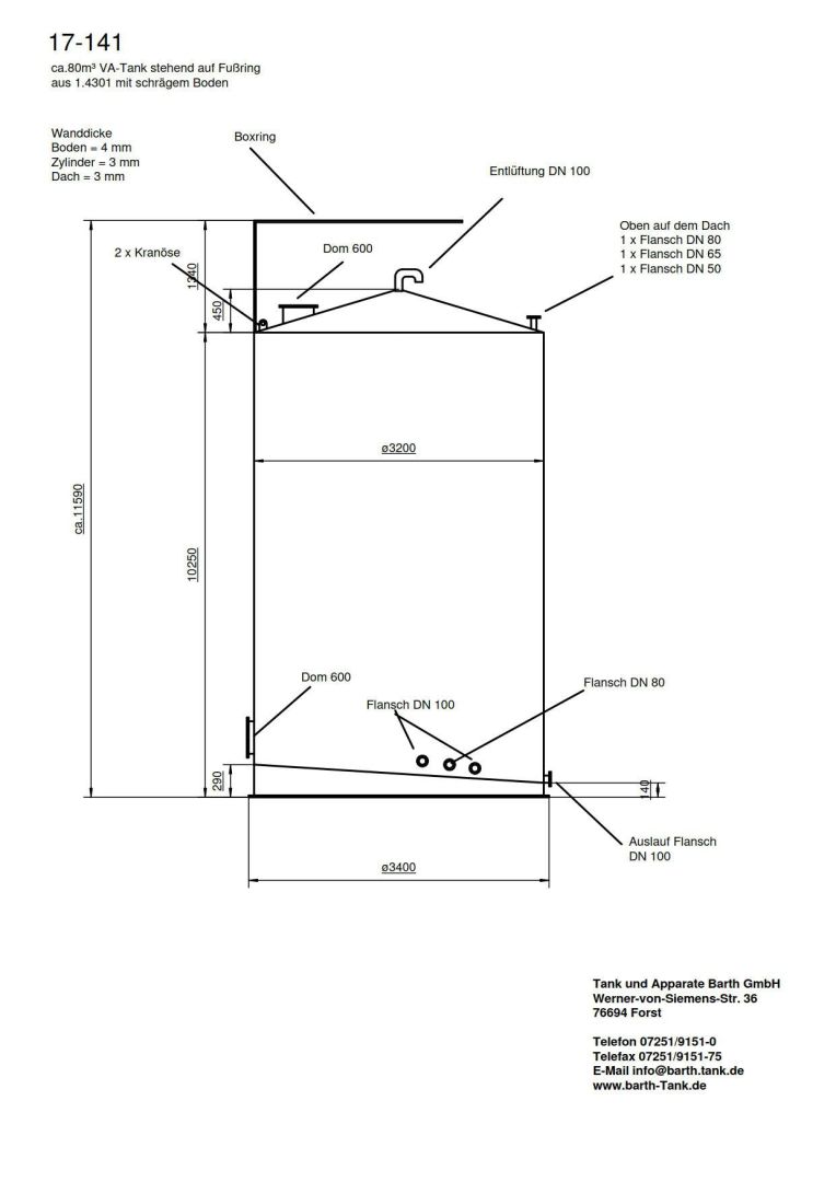
17-141GL |
|
Kurzbezeichnung 1 |
Lagerbehälter aus Edelstahl (V2A), WSt. 1.4301 |
|
Technische Daten / Maße |
|
|---|---|
| Attribute | Wert |
|
Stückzahl |
1 |
|
Volumen |
80000 Liter |
|
Behälterart |
Lagerbehälter |
|
Zustand |
gebraucht |
|
Lebensmittelgeeignet |
1 |
|
Bauform |
stehend |
|
Anmerkung |
Auf kurzem Fußring |
|
Durchmesser außen |
3200 mm |
|
Zylindrische Höhe |
10250 mm |
|
Gesamthöhe |
11590 mm |
|
Gewicht |
3400 kg |
|
Wandstärke Unterboden |
4 mm |
|
Wandstärke Oberboden |
3 mm |
|
Wandstärke Mantel/Zylinder |
3 mm |
|
Ausstattung |
|
| Attribute | Wert |
|
Standform |
Fußring/Standzarge |
|
Unterboden |
ganz unten: |
|
Bodenart oben |
Kegelboden |
|
Bodenart unten |
Flachboden |
|
Skizze vorhanden |
1 |
|
Behälterdokumentation vorhanden |
ansonsten gem. Skizze u. Fotos |