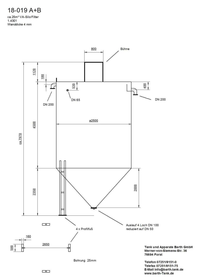
Filterbehälter aus Edelstahl (V2A), Sandfilter
| Attribute | Wert |
|
Artikelnummer |
18-019A+BGL |
|
Kurzbezeichnung 1 |
Filterbehälter aus Edelstahl (V2A), Sandfilter |
|
Technische Daten / Maße |
|
|---|---|
| Attribute | Wert |
|
Stückzahl |
2 |
|
Volumen |
25000 Liter |
|
Behälterart |
Filterbehälter |
|
Zustand |
gebraucht |
|
Lebensmittelgeeignet |
1 |
|
Bauform |
stehend |
|
Anmerkung |
Sandfilterbehälter |
|
Durchmesser innen |
2500 mm |
|
Zylindrische Höhe |
4500 mm |
|
Gesamthöhe |
7970 mm |
|
Betriebsdruck |
drucklos |
|
Wandstärke Böden |
4 mm |
|
Wandstärke Mantel/Zylinder |
4 mm |
|
Bodenfreiheit |
350 mm |
|
Material / Beschaffenheit |
|
| Attribute | Wert |
|
Werkstoff Füße |
V2A (1.4301) |
|
Ausstattung |
|
| Attribute | Wert |
|
Standform |
Profilfüße |
|
Anzahl |
4 |
|
Befestigung |
fest |
|
Unterboden |
Die Konusspitze endet in einem Flanschstutzen DN 100 mit Gegenflansch und eingeschweißtem Gewindestutzen DN 50 |
|
Bodenart oben |
offen |
|
Bodenart unten |
Konusboden |
|
Skizze vorhanden |
1 |
|
Behälterdokumentation vorhanden |
ansonsten gem. Skizze |