Lagerbehälter aus Edelstahl (V2A), stehend
| Attribute | Wert |
|
Artikelnummer |
18-123A-CG |
|
Kurzbezeichnung 1 |
Lagerbehälter aus Edelstahl (V2A), stehend |
|
Technische Daten / Maße |
|
|---|---|
| Attribute | Wert |
|
Stückzahl |
3 |
|
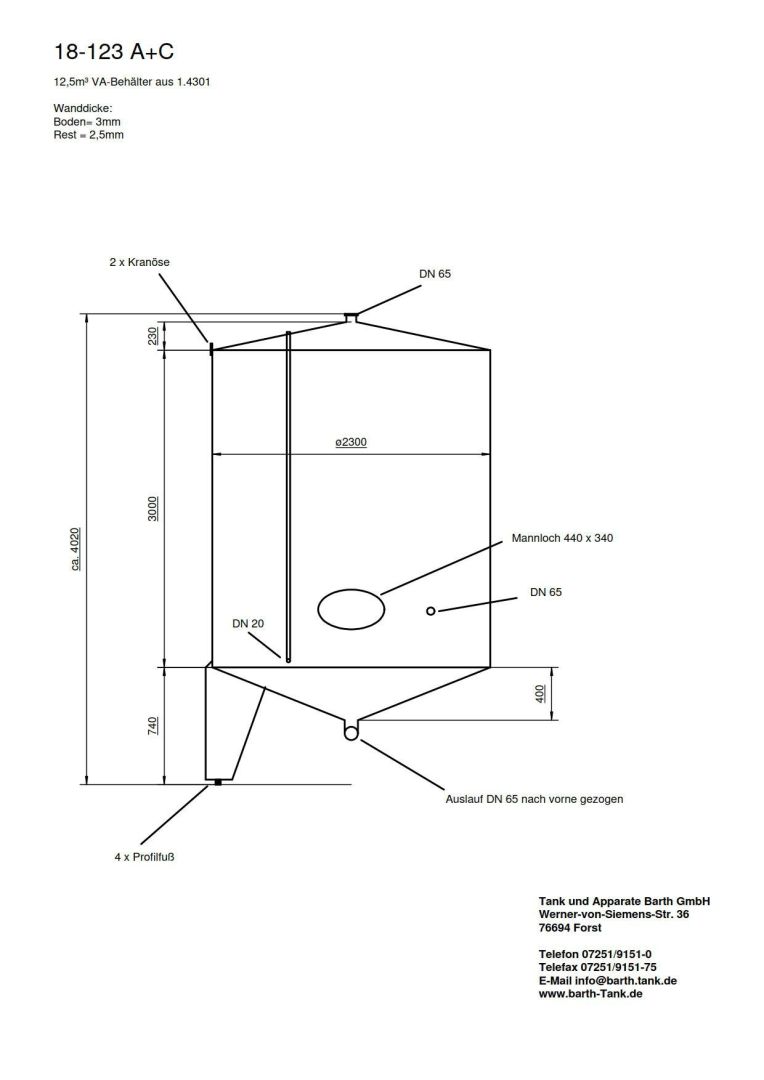
Volumen |
12500 Liter |
|
Behälterart |
Lagerbehälter |
|
Zustand |
gebraucht |
|
Bauform |
stehend |
|
Durchmesser außen |
2300 mm |
|
Zylindrische Höhe |
3000 mm |
|
Gesamthöhe |
4020 mm |
|
Wandstärke Unterboden |
3 mm |
|
Wandstärke Oberboden |
25 mm |
|
Wandstärke Mantel/Zylinder |
25 mm |
|
Material / Beschaffenheit |
|
| Attribute | Wert |
|
Werkstoff Füße |
V2A (1.4301) |
|
Ausstattung |
|
| Attribute | Wert |
|
Standform |
Profilfüße |
|
Anzahl |
4 |
|
Befestigung |
fest |
|
Füße höhenverstellbar |
1 |
|
Unterboden |
1 Auslauf nach vorne gezogen NW 65 |
|
Bodenart oben |
Kegelboden |
|
Bodenart unten |
Kegelboden |
|
Skizze vorhanden |
1 |
|
Behälterdokumentation vorhanden |
ansonsten gem. Skizze |
|
Anmerkungen |
Mit Kalotten |