Lagerbehälter aus GFK, doppelwandig, Flachboden
| Attribute | Wert |
|
Artikelnummer |
18-151G |
|
Kurzbezeichnung 1 |
Lagerbehälter aus GFK, doppelwandig, Flachboden |
|
Technische Daten / Maße |
|
|---|---|
| Attribute | Wert |
|
Stückzahl |
1 |
|
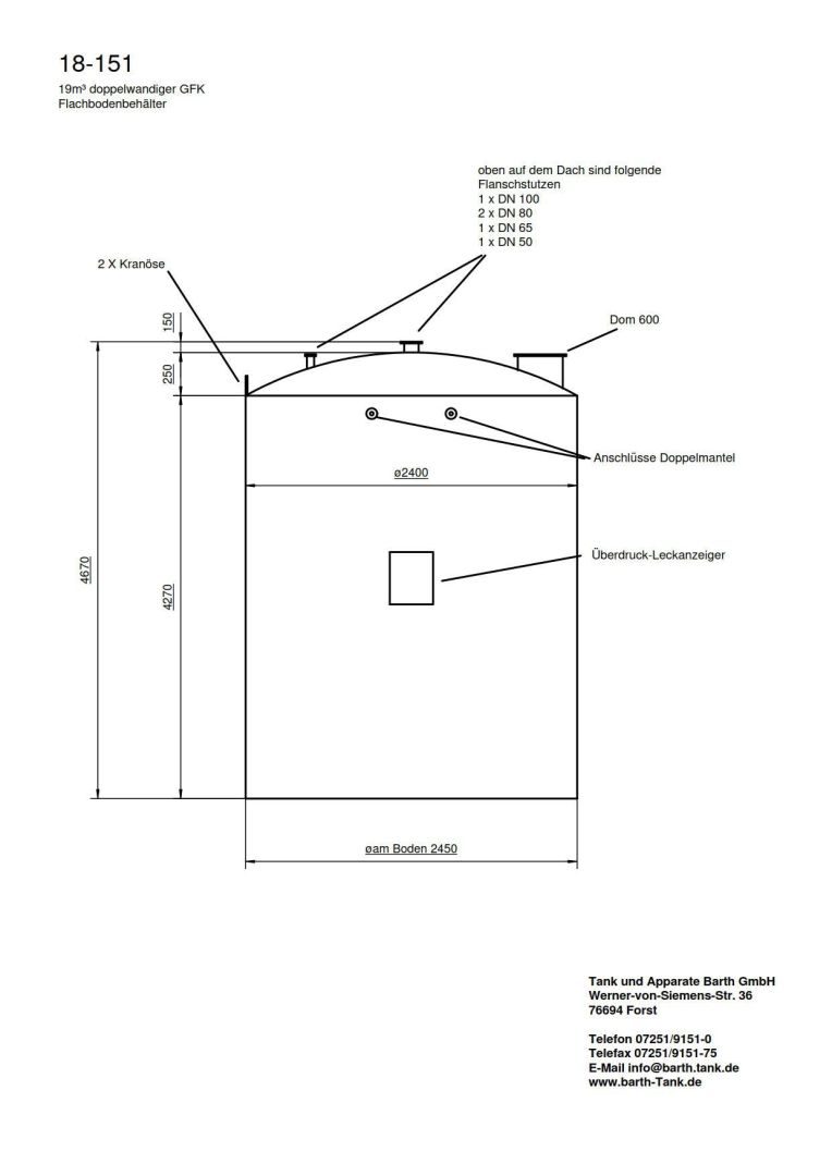
Volumen |
19000 Liter |
|
Behälterart |
Lagerbehälter |
|
Bauform |
stehend |
|
Doppelmantel überwachbar |
1 |
|
Doppelmantel überwachbar |
Luft |
|
Durchmesser innen |
2400 mm |
|
Zylindrische Höhe |
4270 mm |
|
Gesamthöhe |
4700 mm |
|
Gewicht |
1050 kg |
|
Betriebsdruck |
drucklos |
|
Material / Beschaffenheit |
|
| Attribute | Wert |
|
Material Innenmantel |
GFK |
|
Werkstoff Doppelmantel |
GFK |
|
Anmerkungen |
Doppelwandiger GFK-Flachbodenbehälter |
|
Ausstattung |
|
| Attribute | Wert |
|
Standform |
Fußring/Standzarge |
|
Anzahl |
1 |
|
Befestigung |
fest |
|
Bodenart oben |
gewölbter Boden |
|
Bodenart unten |
Flachboden |
|
Behälterdokumentation vorhanden |
Behälter mit Dokumentation u. Statik ansonsten gem. Zeichnung |
|
Behälter-Statik |
1 |
|
Prüfbescheinigung |
1 |