Rührwerkbehälter aus Edelstahl V2A, heiz-/kühlbar
| Attribute | Wert |
|
Artikelnummer |
18-154A+BG |
|
Kurzbezeichnung 1 |
Rührwerkbehälter aus Edelstahl V2A, heiz-/kühlbar |
|
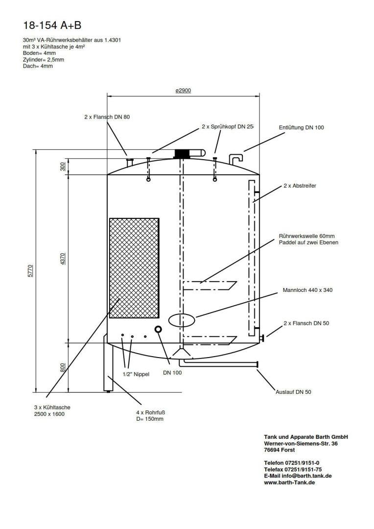
Technische Daten / Maße |
|
|---|---|
| Attribute | Wert |
|
Stückzahl |
1 |
|
Volumen |
30000 Liter |
|
Behälterart |
Rührwerksbehälter |
|
Zustand |
gebraucht |
|
Bauform |
stehend |
|
Anmerkung |
heiz-/kühlbarer Druck-/Rührwerkbehälter |
|
Durchmesser innen |
2900 mm |
|
Zylindrische Höhe |
4370 mm |
|
Gesamthöhe |
6030 mm |
|
Gewicht |
2100 kg |
|
Betriebsdruck |
Überdruck |
|
Betriebsdruck |
099 bar |
|
Wandstärke Böden |
4 mm |
|
Wandstärke Mantel/Zylinder |
25 mm |
|
Material / Beschaffenheit |
|
| Attribute | Wert |
|
Material Innenmantel |
V2A (1.4301) |
|
Werkstoff Doppelmantel |
V2A (1.4301) |
|
Werkstoff Füße |
V2A (1.4301) |
|
Schweißnähte innen verschliffen |
1 |
|
Heiz-/Kühlsystem |
|
| Attribute | Wert |
|
Heiz-/Kühlsystem |
1 |
|
Zylinder |
Doppelmantel |
|
Betriebsdruck |
4 bar |
|
Anmerkungen |
Behälter am Zylinder mit drei umlaufenden Kühltaschen 2.500 mm x 1.600 mm, Inhalt pro Kühltasche 19 Ltr. bei 4 bar Druck, je Kühlfläche 4 m² |
|
Ausstattung |
|
| Attribute | Wert |
|
Standform |
Kalottenfüße |
|
Anzahl |
4 |
|
Befestigung |
fest |
|
Füße höhenverstellbar |
1 |
|
Fußhöhe |
800 mm |
|
Unterboden |
1 Auslaufstutzen nach vorne gezogen DN 50 |
|
Bodenart oben |
gewölbter Boden |
|
Bodenart unten |
gewölbter Boden |
|
Skizze vorhanden |
1 |
|
Behälterdokumentation vorhanden |
ansonsten gem. Skizze |
|
Anmerkungen |
Zwischen Getriebe des Rührwerks und Klöpperboden ist der Behälter nach oben offen |