Lagerbehälter aus Edelstahl (V4A), isoliert
| Attribute | Wert |
|
Artikelnummer |
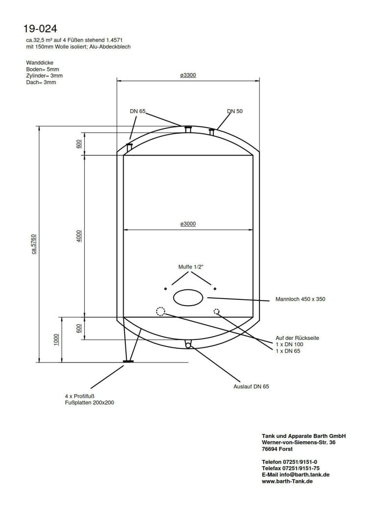
19-024GL |
|
Kurzbezeichnung 1 |
Lagerbehälter aus Edelstahl (V4A), isoliert |
|
Technische Daten / Maße |
|
|---|---|
| Attribute | Wert |
|
Stückzahl |
1 |
|
Volumen |
32500 Liter |
|
Behälterart |
Lagerbehälter |
|
Zustand |
gebraucht |
|
Lebensmittelgeeignet |
1 |
|
Bauform |
stehend |
|
Durchmesser innen |
3000 mm |
|
Durchmesser außen |
3300 mm |
|
Zylindrische Höhe |
4000 mm |
|
Gesamthöhe |
5760 mm |
|
Betriebsdruck |
drucklos |
|
Wandstärke Unterboden |
5 mm |
|
Wandstärke Oberboden |
3 mm |
|
Wandstärke Mantel/Zylinder |
3 mm |
|
Material / Beschaffenheit |
|
| Attribute | Wert |
|
Werkstoff Füße |
Edelstahl |
|
Oberfläche außen |
Alublech |
|
Schweißnähte innen verschliffen |
1 |
|
Isolierung |
|
| Attribute | Wert |
|
Isolierung |
1 |
|
Isolierstärke |
150 mm |
|
Isolier-Material |
Mineralwolle |
|
Material Isoliermantel |
Aluminium |
|
Isoliermantel |
verschraubt/genietet |
|
Ausstattung |
|
| Attribute | Wert |
|
Standform |
Füße |
|
Anzahl |
4 |
|
Befestigung |
fest |
|
Unterboden |
in der Mitte: |
|
Bodenart oben |
gewölbter Boden |
|
Bodenart unten |
gewölbter Boden |
|
Skizze vorhanden |
1 |
|
Behälterdokumentation vorhanden |
ansonsten gem. Skizze und Fotos |
|
Anmerkungen |
Behälter hat an der Innenseite einige kleinere Dellen ohne Auswirkung auf Funktion |