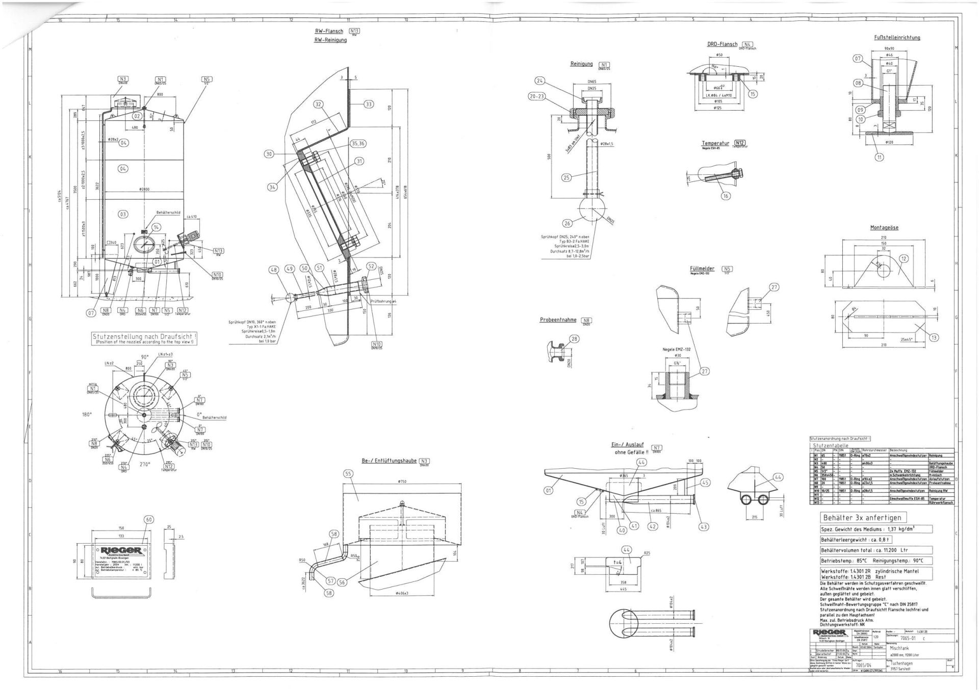
Rührwerkbehälter aus Edelstahl (V2A), WSt. 1.4301
| Attribute | Wert |
|
Artikelnummer |
19-033A-CGL |
|
Kurzbezeichnung 1 |
Rührwerkbehälter aus Edelstahl (V2A), WSt. 1.4301 |
|
Technische Daten / Maße |
|
|---|---|
| Attribute | Wert |
|
Stückzahl |
3 |
|
Volumen |
11200 Liter |
|
Behälterart |
Rührwerksbehälter |
|
Zustand |
gebraucht |
|
Lebensmittelgeeignet |
1 |
|
Bauform |
stehend |
|
Durchmesser außen |
2000 mm |
|
Zylindrische Höhe |
3500 mm |
|
Gesamthöhe |
5130 mm |
|
Gewicht |
800 kg |
|
Wandstärke Unterboden |
35 mm |
|
Wandstärke Oberboden |
30 mm |
|
Wandstärke Mantel/Zylinder |
3 mm |
|
Bodenfreiheit |
500 mm |
|
Betriebstemperatur |
85 Grad Celsius |
|
Anmerkungen |
ausgelegt für spezifisches Gewicht 1,37 |
|
Material / Beschaffenheit |
|
| Attribute | Wert |
|
Werkstoff Füße |
V2A-1.4301 |
|
Schweißnähte innen verschliffen |
1 |
|
Ausstattung |
|
| Attribute | Wert |
|
Standform |
Kalottenfüße |
|
Anzahl |
4 |
|
Befestigung |
fest |
|
Füße höhenverstellbar |
1 |
|
Unterboden |
in der Mitte: |
|
Bodenart oben |
Kegelboden |
|
Bodenart unten |
Kegelboden |
|
Skizze vorhanden |
1 |
|
Behälterdokumentation vorhanden |
ansonsten gem. Zeichnung |
|
Anmerkungen |
Alle Schweißnähte innen glatt verschliffen |
|
Rührwerk |
|
| Attribute | Wert |
|
Rührwerk |
1 |
|
Art des Rührwerks |
Propeller |
|
Klassifikation |
Schnellläufer |
|
Einbau |
seitlich |
|
Geschwindigkeit |
955 Umdrehungen/Mute |
|
Rührwerkleistung |
13 kW |
|
Hersteller |
Stelzer |
|
Typ |
SMP63G, D2 |