Druckbehälter aus Edelstahl (V2A), WSt. 1.4541
| Attribute | Wert |
|
Artikelnummer |
19-053GL |
|
Kurzbezeichnung 1 |
Druckbehälter aus Edelstahl (V2A), WSt. 1.4541 |
|
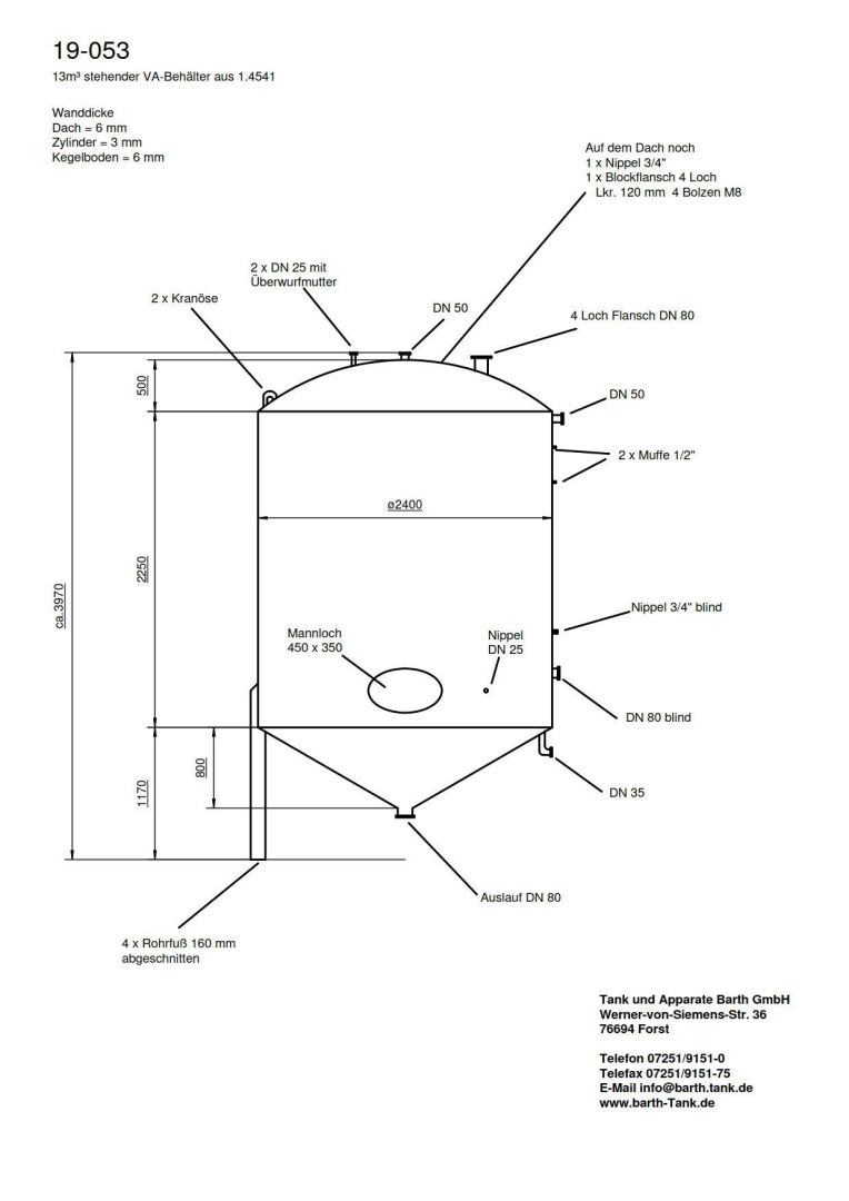
Technische Daten / Maße |
|
|---|---|
| Attribute | Wert |
|
Stückzahl |
1 |
|
Volumen |
13000 Liter |
|
Behälterart |
Drucktank |
|
Zustand |
gebraucht |
|
Lebensmittelgeeignet |
1 |
|
Bauform |
stehend |
|
Anmerkung |
ehem. Bierlagertank |
|
Durchmesser innen |
2400 mm |
|
Zylindrische Höhe |
2250 mm |
|
Gesamthöhe |
3970 mm |
|
Betriebsdruck |
Überdruck |
|
Betriebsdruck |
3 bar |
|
Prüfdruck |
39 bar |
|
Wandstärke Böden |
6 mm |
|
Wandstärke Mantel/Zylinder |
3 mm |
|
Bodenfreiheit |
ca 300 mm |
|
Betriebstemperatur |
20 Grad Celsius |
|
Typenschild vorhanden |
Ja |
|
Hersteller |
H. Bauer |
|
Fabrik-Nr |
0942-2199/1 |
|
Baujahr |
1977 |
|
Material / Beschaffenheit |
|
| Attribute | Wert |
|
Werkstoff Füße |
V2A-1.4301 |
|
Schweißnähte innen verschliffen |
1 |
|
Ausstattung |
|
| Attribute | Wert |
|
Standform |
Rohrfüße |
|
Anzahl |
4 |
|
Befestigung |
fest |
|
Unterboden |
in der Mitte: |
|
Bodenart oben |
gewölbter Boden |
|
Bodenart unten |
Konusboden |
|
Skizze vorhanden |
1 |
|
Behälterdokumentation vorhanden |
ansonsten gem. Skizze und Fotos |
|
Anmerkungen |
Behälter hat mehrere Dellen ohne Auswirkung auf Funktion |