Druckbehälter aus Stahl, (Druckluftwasserkessel)
| Attribute | Wert |
|
Artikelnummer |
19-067GL |
|
Kurzbezeichnung 1 |
Druckbehälter aus Stahl, (Druckluftwasserkessel) |
|
Technische Daten / Maße |
|
|---|---|
| Attribute | Wert |
|
Stückzahl |
1 |
|
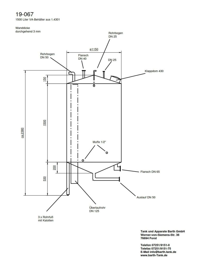
Volumen |
1500 Liter |
|
Behälterart |
Lagerbehälter |
|
Zustand |
gebraucht |
|
Lebensmittelgeeignet |
1 |
|
Bauform |
stehend |
|
Anmerkung |
CIP-Tank |
|
Durchmesser innen |
1150 mm |
|
Zylindrische Höhe |
1500 mm |
|
Gesamthöhe |
2380 mm |
|
Wandstärke Böden |
3 mm |
|
Wandstärke Mantel/Zylinder |
3 mm |
|
Bodenfreiheit |
200 mm |
|
Material / Beschaffenheit |
|
| Attribute | Wert |
|
Werkstoff Füße |
V2A-1.4301 |
|
Ausstattung |
|
| Attribute | Wert |
|
Standform |
Kalottenfüße |
|
Anzahl |
3 |
|
Befestigung |
fest |
|
Fußhöhe |
530 mm |
|
Unterboden |
1 Auslauf NW 50 |
|
Bodenart oben |
Kegelboden |
|
Bodenart unten |
Kegelboden |
|
Skizze vorhanden |
1 |
|
Behälterdokumentation vorhanden |
ansonsten gem. Skizze + Fotos |