Lagerbehälter aus Edelstahl (V4A), 1.4571
| Attribute | Wert |
|
Artikelnummer |
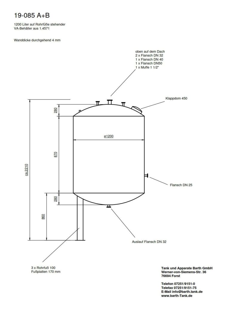
19-085A+BGL |
|
Kurzbezeichnung 1 |
Lagerbehälter aus Edelstahl (V4A), 1.4571 |
|
Technische Daten / Maße |
|
|---|---|
| Attribute | Wert |
|
Stückzahl |
1 |
|
Volumen |
1200 Liter |
|
Behälterart |
Lagerbehälter |
|
Zustand |
gebraucht |
|
Lebensmittelgeeignet |
1 |
|
Bauform |
stehend |
|
Anmerkung |
Klappdom oben |
|
Durchmesser innen |
1200 mm |
|
Zylindrische Höhe |
870 mm |
|
Gesamthöhe |
2210 mm |
|
Betriebsdruck |
drucklos |
|
Wandstärke Unterboden |
4 mm |
|
Wandstärke Oberboden |
4 mm |
|
Wandstärke Mantel/Zylinder |
4 mm |
|
Bodenfreiheit |
500 mm |
|
Ausstattung |
|
| Attribute | Wert |
|
Standform |
Rohrfüße |
|
Anzahl |
3 |
|
Befestigung |
fest |
|
Unterboden |
in der Mitte des Unterbodens: |
|
Bodenart oben |
gewölbter Boden |
|
Bodenart unten |
gewölbter Boden |
|
Skizze vorhanden |
1 |
|
Behälterdokumentation vorhanden |
ansonsten gem. Skizze + Fotos |