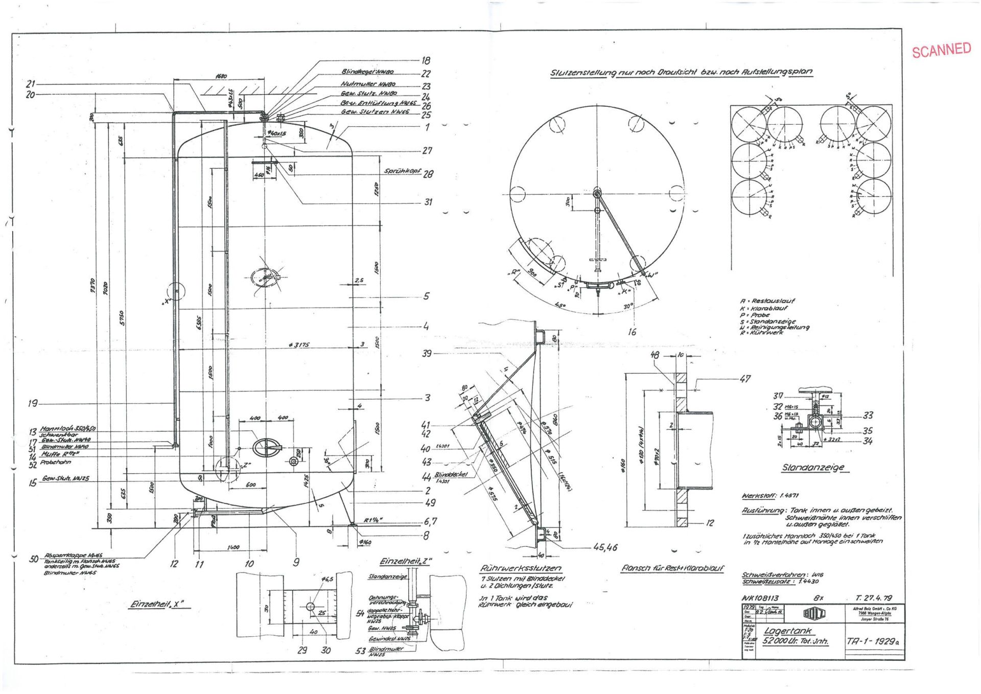
Rührwerkbehälter aus Edelstahl (V4A), KZE-geeignet
| Attribute | Wert |
|
Artikelnummer |
19-091A-DGL |
|
Kurzbezeichnung 1 |
Rührwerkbehälter aus Edelstahl (V4A), KZE-geeignet |
|
Technische Daten / Maße |
|
|---|---|
| Attribute | Wert |
|
Stückzahl |
2 |
|
Volumen |
52000 Liter |
|
Behälterart |
Lagerbehälter |
|
Zustand |
gebraucht |
|
Lebensmittelgeeignet |
1 |
|
Bauform |
stehend |
|
Anmerkung |
Fruchtsaftbehälter, KZE-geeignet |
|
Durchmesser innen |
3175 mm |
|
Zylindrische Höhe |
5750 mm |
|
Gesamthöhe |
7570 mm |
|
Wandstärke Unterboden |
5 mm |
|
Wandstärke Oberboden |
3 mm |
|
Wandstärke Mantel/Zylinder |
4 mm |
|
Material / Beschaffenheit |
|
| Attribute | Wert |
|
Werkstoff Füße |
Edelstahl |
|
Ausstattung |
|
| Attribute | Wert |
|
Standform |
Kalottenfüße |
|
Anzahl |
6 |
|
Befestigung |
fest |
|
Unterboden |
in der Mitte: |
|
Bodenart oben |
Klöpperboden |
|
Bodenart unten |
Klöpperboden |
|
Behälterdokumentation vorhanden |
ansonsten gem. Zeichnung und Fotos |
|
Rührwerk |
|
| Attribute | Wert |
|
Rührwerk |
1 |