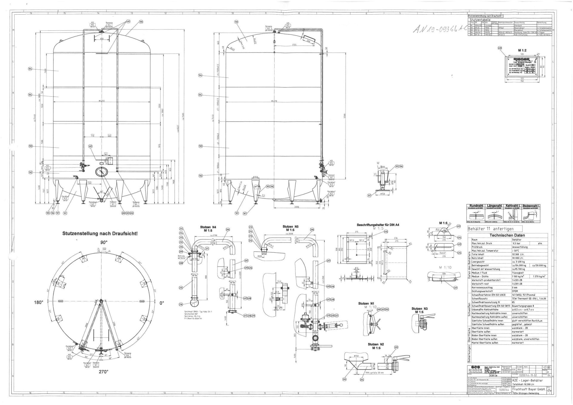
Druckbehälter aus Edelstahl (V2A), KZE-Behälter
| Attribute | Wert |
|
Artikelnummer |
19-093A-CGL |
|
Kurzbezeichnung 1 |
Druckbehälter aus Edelstahl (V2A), KZE-Behälter |
|
Technische Daten / Maße |
|
|---|---|
| Attribute | Wert |
|
Stückzahl |
3 |
|
Volumen |
92300 Liter |
|
Behälterart |
Drucktank |
|
Zustand |
gebraucht |
|
Lebensmittelgeeignet |
1 |
|
Bauform |
stehend |
|
Anmerkung |
KZE-Behälter, Fabrikat: Rieger |
|
Durchmesser innen |
4212 mm |
|
Zylindrische Höhe |
5500 mm |
|
Gesamthöhe |
7440 mm |
|
Spezifisches Gewicht des Mediums |
137 to/m³ |
|
Betriebsdruck |
Überdruck |
|
Betriebsdruck |
05 bar |
|
Wandstärke Unterboden |
6 mm |
|
Wandstärke Oberboden |
4 mm |
|
Wandstärke Mantel/Zylinder |
4 mm |
|
Betriebstemperatur |
25 Grad Celsius |
|
Material / Beschaffenheit |
|
| Attribute | Wert |
|
Oberfläche außen |
marmoriert |
|
Ausstattung |
|
| Attribute | Wert |
|
Standform |
Kalottenfüße |
|
Anzahl |
8 |
|
Befestigung |
fest |
|
Füße höhenverstellbar |
1 |
|
Unterboden |
1 x Restauslaufstutzen DN 65 mit Scheibenventil, mittig, nach vorne gezogen |
|
Bodenart oben |
gewölbter Boden |
|
Bodenart unten |
gewölbter Boden |
|
Behälterdokumentation vorhanden |
ansonsten gem. Zeichnung und Fotos |