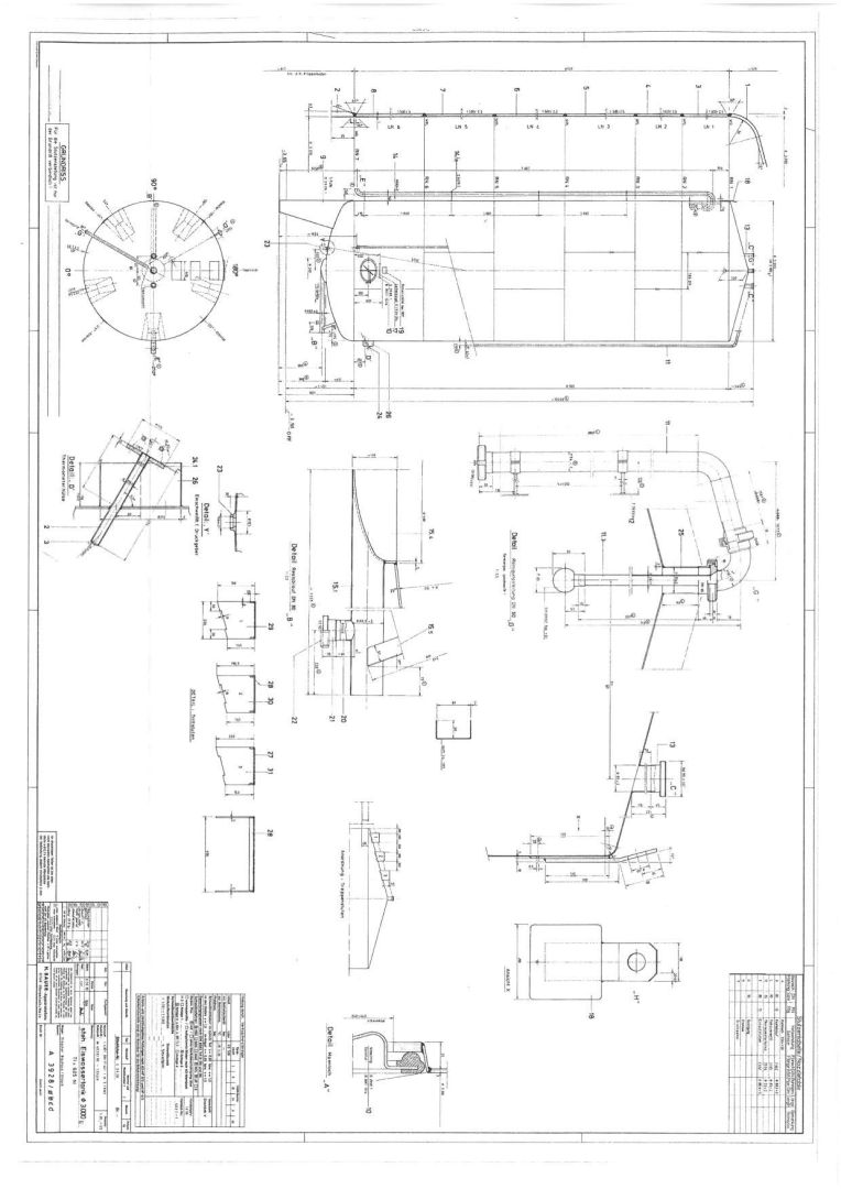
Lagerbehälter aus Edelstahl (V2A) stehend isoliert
| Attribute | Wert |
|
Artikelnummer |
19-117GL |
|
Kurzbezeichnung 1 |
Lagerbehälter aus Edelstahl (V2A) stehend isoliert |
|
Technische Daten / Maße |
|
|---|---|
| Attribute | Wert |
|
Stückzahl |
1 |
|
Volumen |
60500 Liter |
|
Behälterart |
Lagerbehälter |
|
Zustand |
gebraucht |
|
Bauform |
stehend |
|
Anmerkung |
ehem. Eiswassertank |
|
Durchmesser innen |
3000 mm |
|
Durchmesser außen |
3300 mm |
|
Zylindrische Höhe |
8000 mm |
|
Gesamthöhe |
10000 mm |
|
Betriebsdruck |
Überdruck |
|
Betriebsdruck |
2 bar |
|
Wandstärke Unterboden |
6 mm |
|
Wandstärke Oberboden |
3 mm |
|
Wandstärke Mantel/Zylinder |
3 mm |
|
Betriebstemperatur |
20 Grad Celsius |
|
Isolierung |
|
| Attribute | Wert |
|
Isolierung |
1 |
|
Isolierstärke |
100 mm |
|
Isolier-Material |
Polyrethanschaum |
|
Material Isoliermantel |
Stahl verzinkt |
|
Isoliermantel |
verschraubt/genietet |
|
Anmerkungen |
Mit verzinktem Trapezabdeckblech Am Oberboden einige leichte Dellen (leichter Unterdruckschaden, ohne Auswirkung auf Funktion) Isolierung teilweise mit kleineren Schäden |
|
Ausstattung |
|
| Attribute | Wert |
|
Standform |
Profilfüße |
|
Anzahl |
5 |
|
Befestigung |
fest |
|
Unterboden |
1 Thermometerhülse |
|
Bodenart oben |
Kegelboden |
|
Bodenart unten |
gewölbter Boden |
|
Zeichnung vorhanden |
1 |
|
Behälterdokumentation vorhanden |
ansonsten gem. Zeichnung und Fotos |