Lagersilos aus Aluminium, (Kunststoffgranulat)
| Attribute | Wert |
|
Artikelnummer |
19-125A-CGL |
|
Kurzbezeichnung 1 |
Lagersilos aus Aluminium, (Kunststoffgranulat) |
|
Technische Daten / Maße |
|
|---|---|
| Attribute | Wert |
|
Stückzahl |
3 |
|
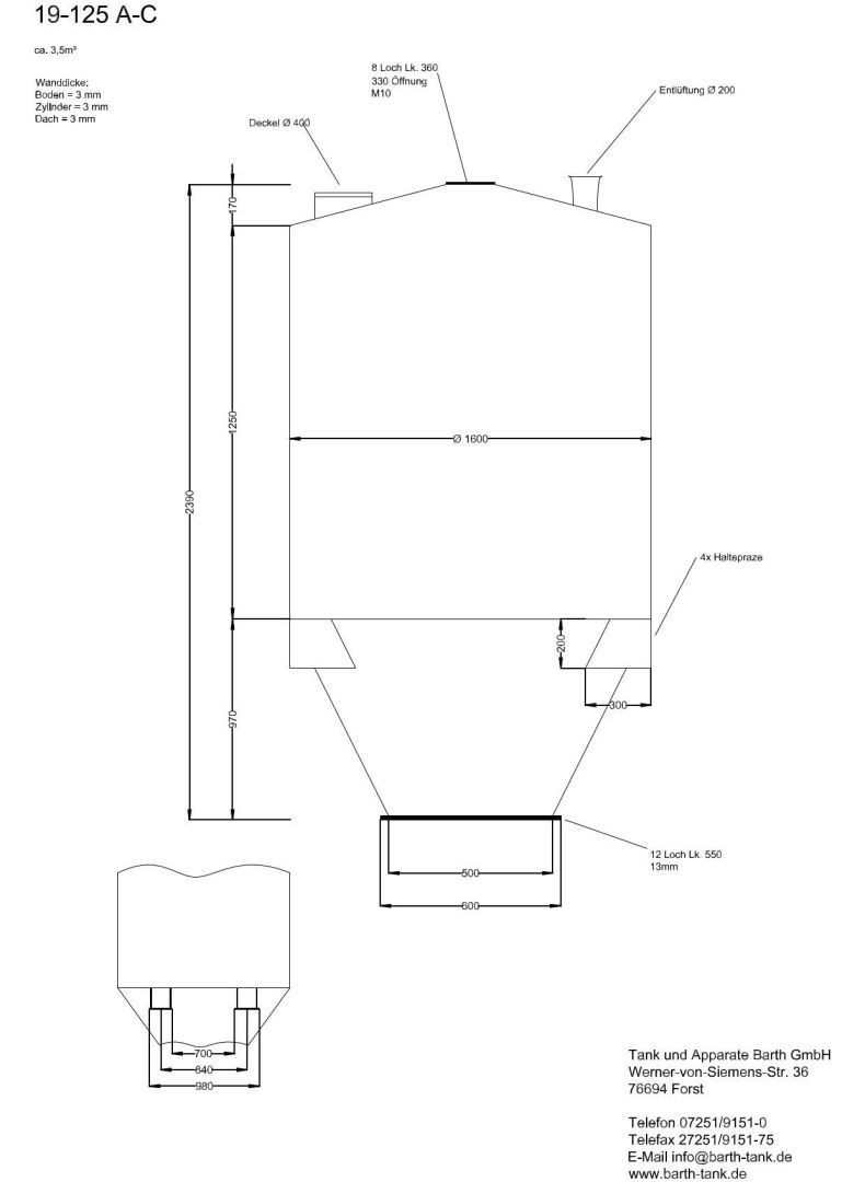
Volumen |
3500 Liter |
|
Behälterart |
Silo |
|
Zustand |
gebraucht |
|
Lebensmittelgeeignet |
1 |
|
Bauform |
hängend |
|
Anmerkung |
Kunststoffgranulat-Silos |
|
Durchmesser innen |
1600 mm |
|
Zylindrische Höhe |
1250 mm |
|
Gesamthöhe |
2390 mm |
|
Betriebsdruck |
drucklos |
|
Wandstärke Böden |
3 mm |
|
Wandstärke Mantel/Zylinder |
3 mm |
|
Material / Beschaffenheit |
|
| Attribute | Wert |
|
Werkstoff Füße |
Stahl |
|
Ausstattung |
|
| Attribute | Wert |
|
Standform |
verzinktes Stahlrahmengestell |
|
Anzahl |
1 |
|
Befestigung |
lose |
|
Unterboden |
der Konus endet in einem Flansch DN 500 |
|
Bodenart oben |
Kegelboden |
|
Bodenart unten |
Konusboden |
|
Skizze vorhanden |
1 |
|
Behälterdokumentation vorhanden |
ansonsten gem. Skizze + Fotos |
|
Anmerkungen |
In einem Stahlgestell befestigte Aluminium-Silos Jeder Behälter ist mit 4 Pratzen auf der Stahlunterkonstruktion festgeschraubt |