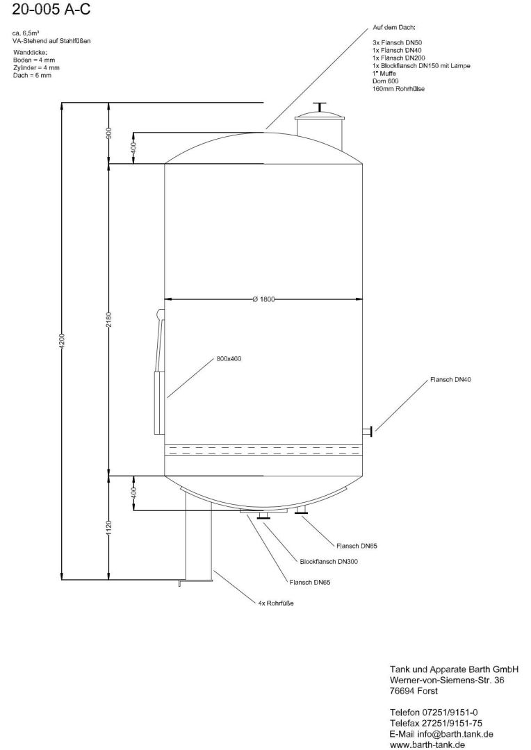
Filterbehälter aus Edelstahl (V2A), WSt 1.4301
| Attribute | Wert |
|
Artikelnummer |
20-005A-CGL |
|
Kurzbezeichnung 1 |
Filterbehälter aus Edelstahl (V2A), WSt 1.4301 |
|
Technische Daten / Maße |
|
|---|---|
| Attribute | Wert |
|
Stückzahl |
3 |
|
Volumen |
6500 Liter |
|
Behälterart |
Filterbehälter |
|
Zustand |
gebraucht |
|
Lebensmittelgeeignet |
1 |
|
Bauform |
stehend |
|
Innenbeschichtung |
keine/roh |
|
Durchmesser außen |
1800 mm |
|
Zylindrische Höhe |
2180 mm |
|
Gesamthöhe |
4200 mm |
|
Betriebsdruck |
drucklos |
|
Wandstärke Unterboden |
4 mm |
|
Wandstärke Oberboden |
6 mm |
|
Wandstärke Böden |
4 mm |
|
Ausstattung |
|
| Attribute | Wert |
|
Standform |
Rohrfüße |
|
Anzahl |
4 |
|
Befestigung |
lose |
|
Unterboden |
1 Blockflansch DN 300 mit mittigem Flanschanschluss DN 65 |
|
Bodenart oben |
gewölbter Boden |
|
Bodenart unten |
gewölbter Boden |
|
Skizze vorhanden |
1 |
|
Behälterdokumentation vorhanden |
ansonsten gem. Skizze + Fotos |