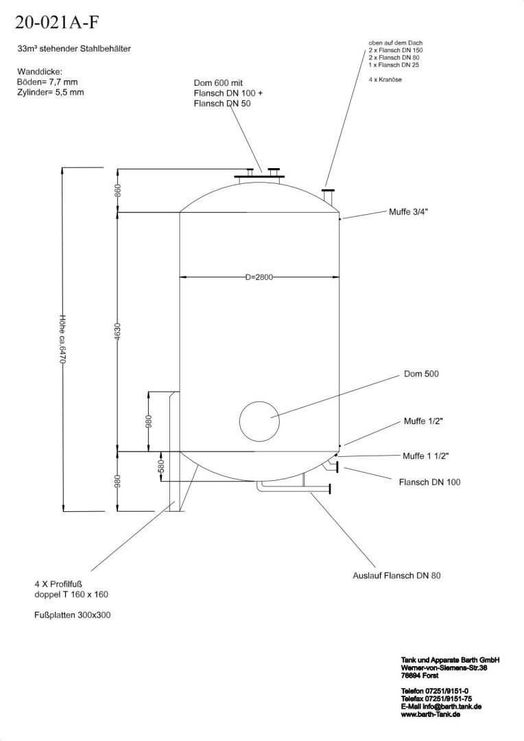
Lagerbehälter aus Stahl, ähnl. DIN 6618/1
| Attribute | Wert |
|
Artikelnummer |
20-021A-FG |
|
Kurzbezeichnung 1 |
Lagerbehälter aus Stahl, ähnl. DIN 6618/1 |
|
Technische Daten / Maße |
|
|---|---|
| Attribute | Wert |
|
Stückzahl |
6 |
|
Volumen |
33000 Liter |
|
Behälterart |
Lagerbehälter |
|
Zustand |
gebraucht |
|
Bauform |
stehend |
|
DIN-Behälter |
ähnlich 6618/1 |
|
Innenbeschichtung |
keine/roh |
|
Oberflächenbehandlung außen |
lackiert |
|
Farbe Lack |
Weiß |
|
Durchmesser außen |
2800 mm |
|
Zylindrische Höhe |
4630 mm |
|
Gesamthöhe |
6470 mm |
|
Betriebsdruck |
drucklos |
|
Wandstärke Böden |
75 mm |
|
Wandstärke Mantel/Zylinder |
55 mm |
|
Bodenfreiheit |
400 mm |
|
Material / Beschaffenheit |
|
| Attribute | Wert |
|
Werkstoff Füße |
Stahl |
|
Ausstattung |
|
| Attribute | Wert |
|
Standform |
Profilfüße |
|
Anzahl |
4 |
|
Befestigung |
fest |
|
Unterboden |
1 Auslaufrohr mit Bogen nach vorne gezogen mit Flansch DN 80 als Auslauf |
|
Bodenart oben |
gewölbter Boden |
|
Bodenart unten |
gewölbter Boden |
|
Skizze vorhanden |
1 |
|
Behälterdokumentation vorhanden |
ansonsten gem. Skizze + Fotos |