Lagerbehälter aus Edelstahl (V2A), stehend
| Attribute | Wert |
|
Artikelnummer |
20-079A-CGL |
|
Kurzbezeichnung 1 |
Lagerbehälter aus Edelstahl (V2A), stehend |
|
Technische Daten / Maße |
|
|---|---|
| Attribute | Wert |
|
Stückzahl |
2 |
|
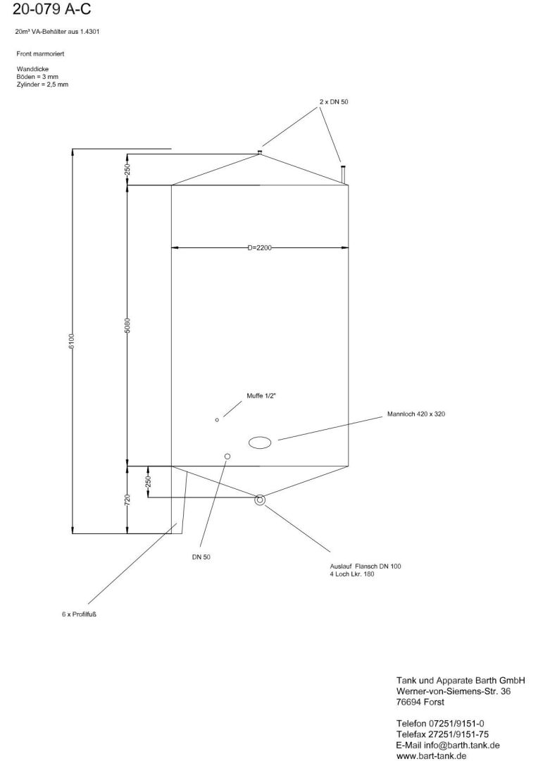
Volumen |
20000 Liter |
|
Behälterart |
Lagerbehälter |
|
Zustand |
gebraucht |
|
Bauform |
stehend |
|
Innenbeschichtung |
keine/roh |
|
Durchmesser innen |
2200 mm |
|
Zylindrische Höhe |
5080 mm |
|
Gesamthöhe |
6100 mm |
|
Betriebsdruck |
drucklos |
|
Wandstärke Unterboden |
3 mm |
|
Wandstärke Oberboden |
3 mm |
|
Wandstärke Mantel/Zylinder |
25 mm |
|
Bodenfreiheit |
350 mm |
|
Material / Beschaffenheit |
|
| Attribute | Wert |
|
Oberfläche außen |
1/2 marmoriert |
|
Schweißnähte innen verschliffen |
1 |
|
Ausstattung |
|
| Attribute | Wert |
|
Standform |
Profilfüße |
|
Anzahl |
4 |
|
Befestigung |
fest |
|
Unterboden |
1 Auslaufrohr NW 100 mit Flansch nach vorne gezogen |
|
Bodenart oben |
Kegelboden |
|
Bodenart unten |
Kegelboden |
|
Skizze vorhanden |
1 |
|
Behälterdokumentation vorhanden |
ansonsten gem. Skizze + Fotos |