Rührwerksbehälter aus Edelstahl (V4A), WSt 1.4571
| Attribute | Wert |
|
Artikelnummer |
20-101GL |
|
Kurzbezeichnung 1 |
Rührwerksbehälter aus Edelstahl (V4A), WSt 1.4571 |
|
Technische Daten / Maße |
|
|---|---|
| Attribute | Wert |
|
Stückzahl |
1 |
|
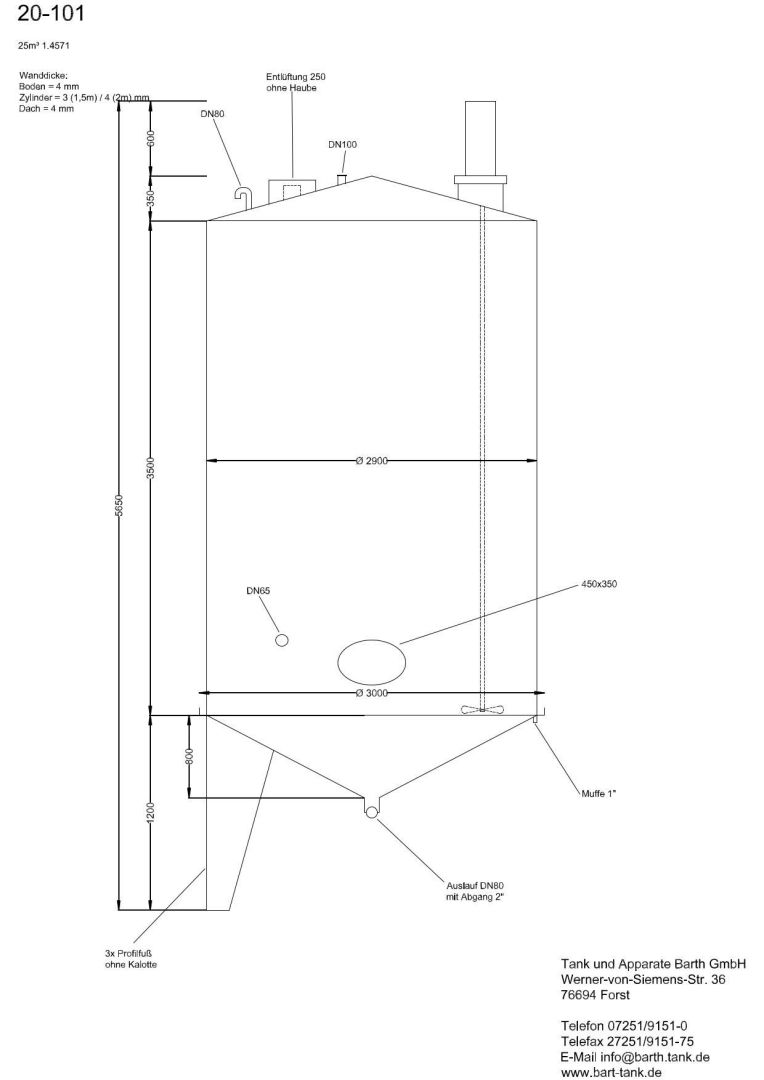
Volumen |
25000 Liter |
|
Behälterart |
Rührwerksbehälter |
|
Zustand |
gebraucht |
|
Lebensmittelgeeignet |
1 |
|
Bauform |
stehend |
|
Innenbeschichtung |
keine/roh |
|
Durchmesser außen |
2900 mm |
|
Zylindrische Höhe |
3500 mm |
|
Gesamthöhe |
5650 mm |
|
Betriebsdruck |
drucklos |
|
Wandstärke Böden |
4 mm |
|
Wandstärke Mantel/Zylinder |
4 mm |
|
Material / Beschaffenheit |
|
| Attribute | Wert |
|
Schweißnähte innen verschliffen |
1 |
|
Ausstattung |
|
| Attribute | Wert |
|
Standform |
Profilfüße |
|
Anzahl |
3 |
|
Befestigung |
fest |
|
Unterboden |
1 Auslauftasse mit abgehendem Flanschstutzen DN 80, reduziert auf 2“ |
|
Bodenart oben |
Kegelboden |
|
Bodenart unten |
Konusboden |
|
Skizze vorhanden |
1 |
|
Behälterdokumentation vorhanden |
ansonsten gem. Skizze + Fotos |
|
Rührwerk |
|
| Attribute | Wert |
|
Rührwerk |
1 |
|
Art des Rührwerks |
Propeller |
|
Klassifikation |
Schnellläufer |
|
Anzahl |
1 |
|
Einbau |
von oben |
|
Geschwindigkeit |
965 Umdrehungen/Mute |
|
Rührwerkleistung |
8 kW |
|
Anzahl der Rührwerkebenen |
1 |
|
Hersteller |
Erwin Stelzer |
|
Typ |
DRX 65P6/12SW |