Druck-/Filterbehälter aus Stahl, beschichtet
| Attribute | Wert |
|
Artikelnummer |
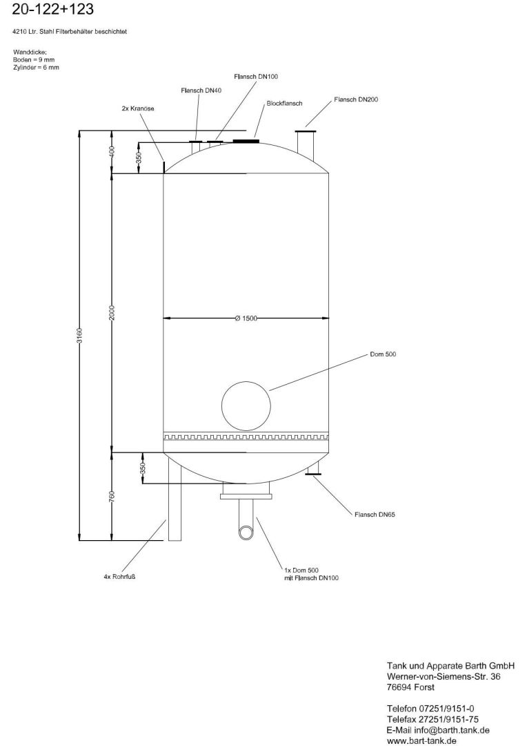
20-122+123GL |
|
Kurzbezeichnung 1 |
Druck-/Filterbehälter aus Stahl, beschichtet |
|
Technische Daten / Maße |
|
|---|---|
| Attribute | Wert |
|
Behälterart |
Filterbehälter |
|
Bauform |
stehend |
|
Innenbeschichtung |
beschichtet |
|
Innenauskleidung - Umfang |
vollständig |
|
Spezifikation |
Epoxidharzbeschichtet |
|
Oberflächenbehandlung außen |
lackiert |
|
Farbe Lack |
Blau |
|
Durchmesser außen |
1500 mm |
|
Zylindrische Höhe |
2000 mm |
|
Gesamthöhe |
3160 mm |
|
Betriebsdruck |
Überdruck |
|
Betriebsdruck |
6 bar |
|
Prüfdruck |
86 bar |
|
Wandstärke Unterboden |
9 mm |
|
Wandstärke Oberboden |
9 mm |
|
Wandstärke Mantel/Zylinder |
6 mm |
|
Material / Beschaffenheit |
|
| Attribute | Wert |
|
Werkstoff Füße |
Stahl |
|
Ausstattung |
|
| Attribute | Wert |
|
Standform |
Rohrfüße |
|
Anzahl |
4 |
|
Befestigung |
fest |
|
Unterboden |
1 Dom DN 500 mit eingeschweißtem Rohrbogen DN 100, mit Flansch DN 100 |
|
Bodenart oben |
Klöpperboden |
|
Bodenart unten |
Klöpperboden |
|
Skizze vorhanden |
1 |
|
Behälterdokumentation vorhanden |
ansonsten gem. Skizze + Fotos |
|
Anmerkungen |
Behälter hat einen eingeschweißten Düsenboden |