Transportbehälter aus Edelstahl (V2A), oben offen
| Attribute | Wert |
|
Artikelnummer |
20-131GL |
|
Kurzbezeichnung 1 |
Transportbehälter aus Edelstahl (V2A), oben offen |
|
Technische Daten / Maße |
|
|---|---|
| Attribute | Wert |
|
Stückzahl |
1 |
|
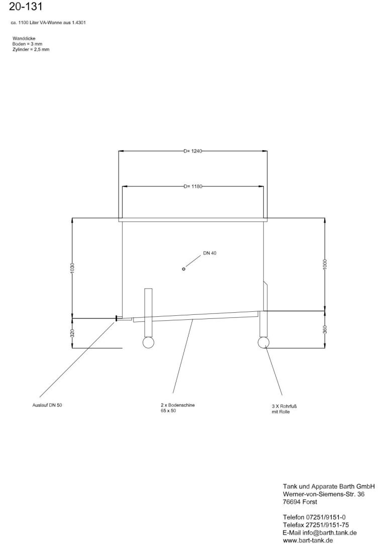
Volumen |
1100 Liter |
|
Behälterart |
Transportbehälter |
|
Zustand |
gebraucht |
|
Lebensmittelgeeignet |
1 |
|
Bauform |
stehend |
|
Innenbeschichtung |
keine/roh |
|
Durchmesser außen |
1180 mm |
|
Zylindrische Höhe |
1000 mm |
|
Gesamthöhe |
1350 mm |
|
Betriebsdruck |
drucklos |
|
Wandstärke Unterboden |
3 mm |
|
Wandstärke Mantel/Zylinder |
25 mm |
|
Material / Beschaffenheit |
|
| Attribute | Wert |
|
Oberfläche außen |
Außen marmoriert |
|
Schweißnähte innen verschliffen |
1 |
|
Ausstattung |
|
| Attribute | Wert |
|
Standform |
Rohrfüße |
|
Anzahl |
3 |
|
Befestigung |
fest |
|
Unterboden |
1 Auslaufstutzen NW 50 |
|
Bodenart oben |
offen |
|
Bodenart unten |
schräger Boden |
|
Skizze vorhanden |
1 |
|
Behälterdokumentation vorhanden |
ansonsten gem. Skizze + Fotos |
|
Anmerkungen |
Behälter mit unterem Schrägboden mit 2 Profilverstärkungen mit Gefälle zum Auslauf |