Lagerbehälter aus Stahl, innen beschichtet
| Attribute | Wert |
|
Artikelnummer |
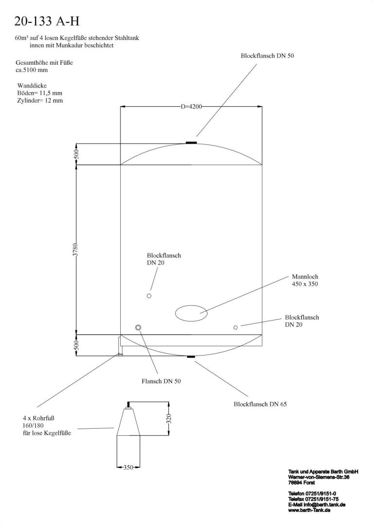
20-133A-HGL |
|
Kurzbezeichnung 1 |
Lagerbehälter aus Stahl, innen beschichtet |
|
Technische Daten / Maße |
|
|---|---|
| Attribute | Wert |
|
Stückzahl |
4 |
|
Volumen |
60000 Liter |
|
Behälterart |
Lagerbehälter |
|
Zustand |
gebraucht |
|
Bauform |
stehend |
|
Anmerkung |
Weinlagertanks |
|
Innenbeschichtung |
beschichtet |
|
Innenauskleidung - Umfang |
vollständig |
|
Spezifikation |
Epoxidharzbeschichtet |
|
Oberflächenbehandlung außen |
lackiert |
|
Farbe Lack |
Beige |
|
Durchmesser außen |
4200 mm |
|
Zylindrische Höhe |
3780 mm |
|
Gesamthöhe |
5100 mm |
|
Betriebsdruck |
drucklos |
|
Wandstärke Böden |
115 mm |
|
Wandstärke Mantel/Zylinder |
12 mm |
|
Material / Beschaffenheit |
|
| Attribute | Wert |
|
Werkstoff Füße |
Stahl |
|
Schweißnähte innen verschliffen |
1 |
|
Ausstattung |
|
| Attribute | Wert |
|
Standform |
Kegelfüße |
|
Anzahl |
4 |
|
Befestigung |
fest |
|
Unterboden |
1 Blockflansch DN 65 |
|
Bodenart oben |
gewölbter Boden |
|
Bodenart unten |
gewölbter Boden |
|
Skizze vorhanden |
1 |
|
Behälterdokumentation vorhanden |
ansonsten gem. Skizze + Fotos |
|
Armaturen vorhanden |
1 |
|
Armaturen |
teilweise |