Lagerbehälter aus Edelstahl (V2A), isoliert
| Attribute | Wert |
|
Artikelnummer |
20-139GL |
|
Kurzbezeichnung 1 |
Lagerbehälter aus Edelstahl (V2A), isoliert |
|
Technische Daten / Maße |
|
|---|---|
| Attribute | Wert |
|
Stückzahl |
1 |
|
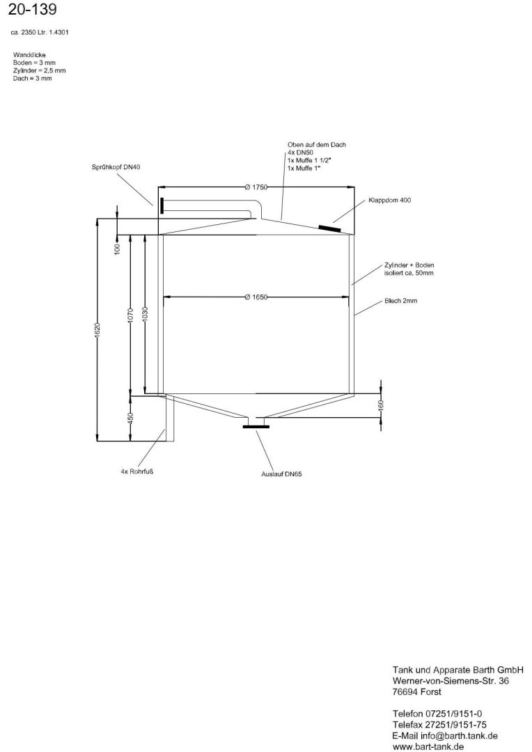
Volumen |
2350 Liter |
|
Behälterart |
Lagerbehälter |
|
Zustand |
gebraucht |
|
Lebensmittelgeeignet |
1 |
|
Bauform |
stehend |
|
Innenbeschichtung |
keine/roh |
|
Durchmesser innen |
1650 mm |
|
Durchmesser außen |
1750 mm |
|
Zylindrische Höhe |
1030 mm |
|
Gesamthöhe |
1800 mm |
|
Betriebsdruck |
drucklos |
|
Wandstärke Böden |
3 mm |
|
Wandstärke Mantel/Zylinder |
25 mm |
|
Material / Beschaffenheit |
|
| Attribute | Wert |
|
Werkstoff Doppelmantel |
V2A (1.4301) |
|
Schweißnähte innen verschliffen |
1 |
|
Isolierung |
|
| Attribute | Wert |
|
Isolierung |
1 |
|
Isolierstärke |
50 mm |
|
Material Isoliermantel |
Edelstahl |
|
Isoliermantel |
diffusionsdicht verschweißt |
|
Anmerkungen |
Behältermantel und Unterboden 50 mm isoliert, mit diffusionsdicht verschweißtem Edelstahlabdeckblech 2 mm Stärke |
|
Ausstattung |
|
| Attribute | Wert |
|
Standform |
Rohrfüße |
|
Anzahl |
4 |
|
Befestigung |
fest |
|
Unterboden |
1 Auslaufstutzen NW 65 |
|
Bodenart oben |
Kegelboden |
|
Bodenart unten |
Kegelboden |
|
Skizze vorhanden |
1 |
|
Behälterdokumentation vorhanden |
ansonsten gem. Skizze und Fotos |