Lagerbehälter aus GFK, Flachbodenbehälter
| Attribute | Wert |
|
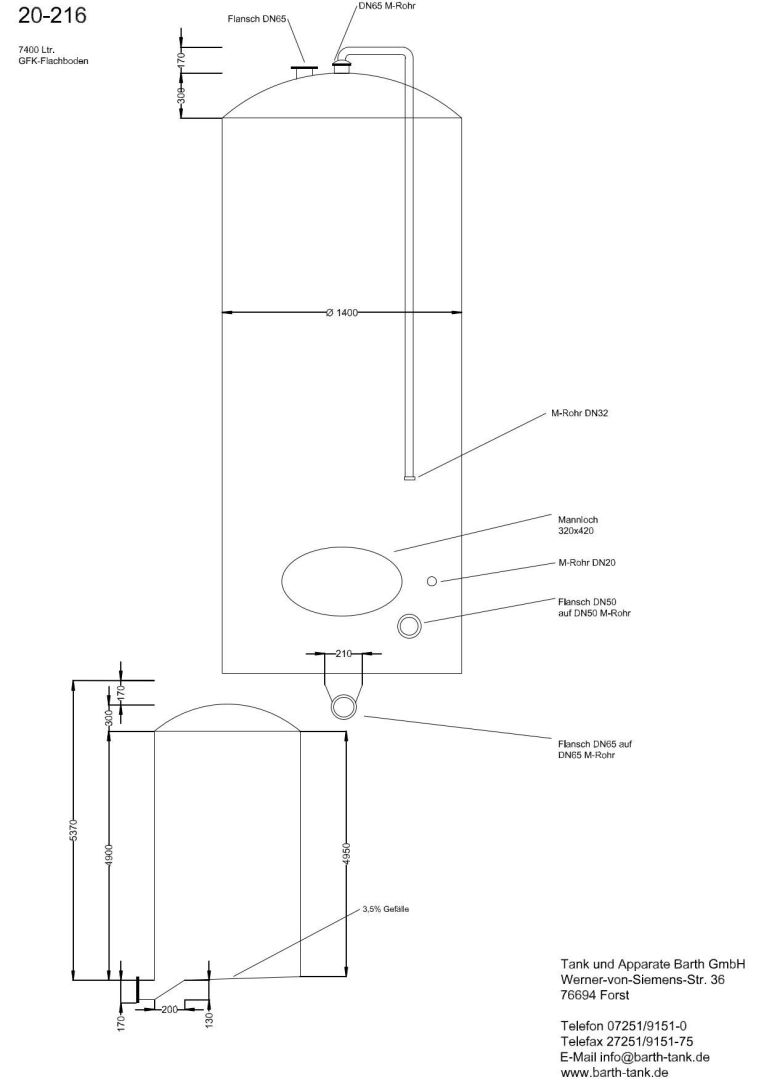
Artikelnummer |
20-216GL |
|
Kurzbezeichnung 1 |
Lagerbehälter aus GFK, Flachbodenbehälter |
|
Technische Daten / Maße |
|
|---|---|
| Attribute | Wert |
|
Stückzahl |
11 |
|
Volumen |
7400 Liter |
|
Behälterart |
Lagerbehälter |
|
Zustand |
gebraucht |
|
Lebensmittelgeeignet |
1 |
|
Bauform |
stehend |
|
Anmerkung |
Flachbodenbehälter |
|
Innenbeschichtung |
keine/roh |
|
Durchmesser außen |
1400 mm |
|
Zylindrische Höhe |
4950 mm |
|
Gesamthöhe |
5530 mm |
|
Betriebsdruck |
drucklos |
|
Ausstattung |
|
| Attribute | Wert |
|
Standform |
Flachboden |
|
Unterboden |
1 Flanschstutzen DN 65 mit Scheibenventil |
|
Bodenart oben |
gewölbter Boden |
|
Bodenart unten |
Flachboden |
|
Gefälle |
35 Prozent |
|
Skizze vorhanden |
1 |
|
Behälterdokumentation vorhanden |
ansonsten gem. Skizze + Fotos |