Rührwerksbehälter aus Edelstahl (V2A), stehend
| Attribute | Wert |
|
Artikelnummer |
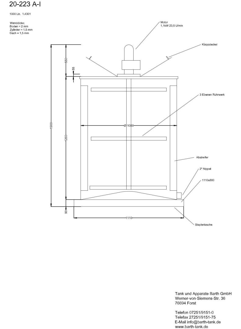
20-223A-IG |
|
Kurzbezeichnung 1 |
Rührwerksbehälter aus Edelstahl (V2A), stehend |
|
Technische Daten / Maße |
|
|---|---|
| Attribute | Wert |
|
Stückzahl |
9 |
|
Volumen |
1000 Liter |
|
Behälterart |
Rührwerksbehälter |
|
Zustand |
gebraucht |
|
Bauform |
stehend |
|
Innenbeschichtung |
keine/roh |
|
Durchmesser außen |
1000 mm |
|
Zylindrische Höhe |
1260 mm |
|
Gesamthöhe |
1900 mm |
|
Betriebsdruck |
drucklos |
|
Wandstärke Unterboden |
2 mm |
|
Wandstärke Oberboden |
15 mm |
|
Wandstärke Mantel/Zylinder |
15 mm |
|
Material / Beschaffenheit |
|
| Attribute | Wert |
|
Werkstoff Füße |
Stahl |
|
Ausstattung |
|
| Attribute | Wert |
|
Standform |
Fußring/Standzarge |
|
Anzahl |
1 |
|
Unterboden |
unterer Fußring mit Staplertaschen |
|
Bodenart oben |
Flachboden |
|
Bodenart unten |
gewölbter Boden |
|
Skizze vorhanden |
1 |
|
Behälterdokumentation vorhanden |
ansonsten gem. Skizze + Fotos |
|
Anmerkungen |
Einige Behälter haben kleinere Dellen |