Druckbehälter aus Edelstahl, Bierdruckbehälter
| Attribute | Wert |
|
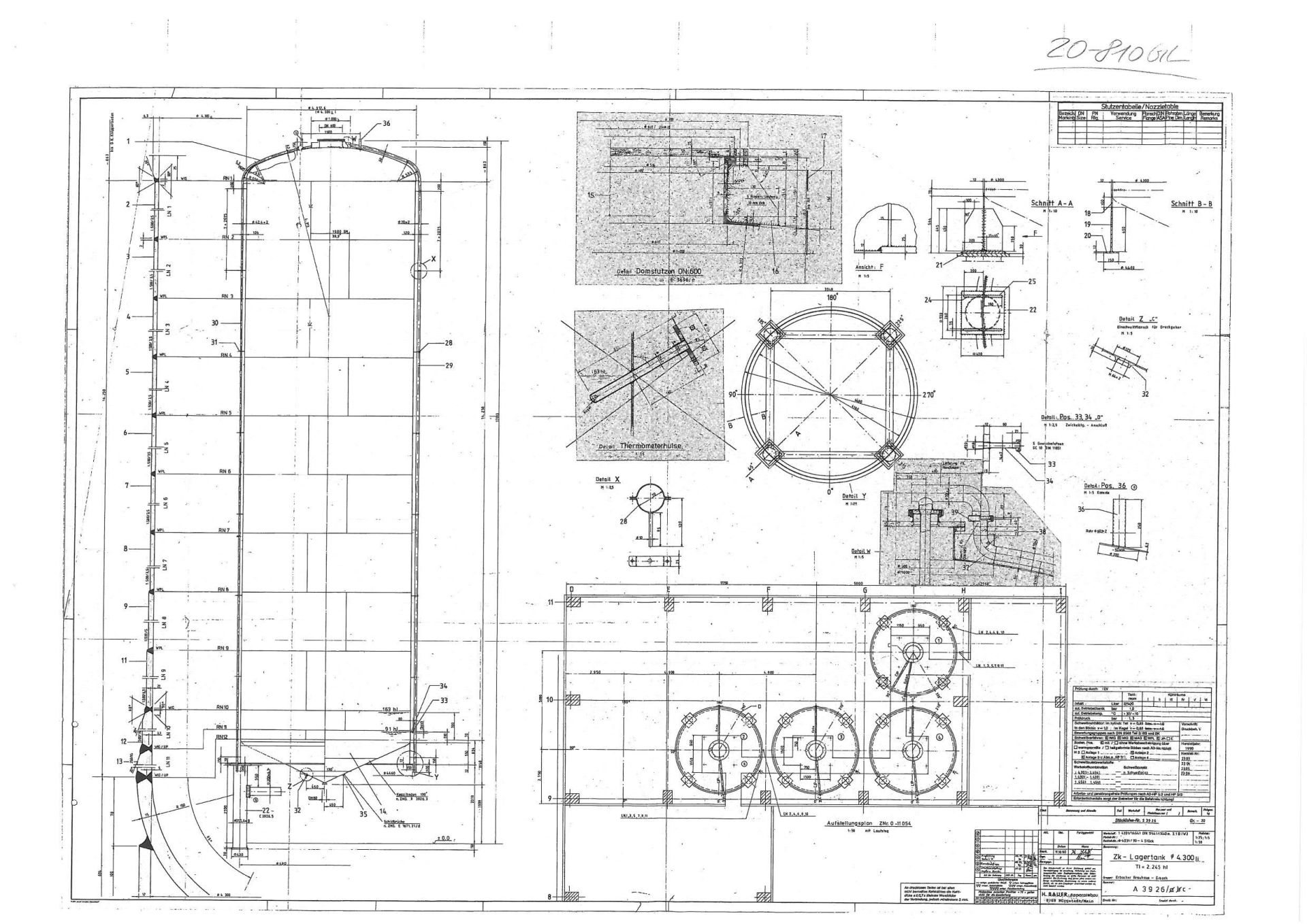
Artikelnummer |
20-810GL |
|
Kurzbezeichnung 1 |
Druckbehälter aus Edelstahl, Bierdruckbehälter |
|
Technische Daten / Maße |
|
|---|---|
| Attribute | Wert |
|
Stückzahl |
3 |
|
Volumen |
225420 Liter |
|
Behälterart |
Drucktank |
|
Zustand |
gebraucht |
|
Lebensmittelgeeignet |
1 |
|
Bauform |
stehend |
|
Anmerkung |
Bierdrucktanks |
|
Innenbeschichtung |
keine/roh |
|
Durchmesser außen |
4300 mm |
|
Zylindrische Höhe |
14250 mm |
|
Gesamthöhe |
15800 mm |
|
Betriebsdruck |
Überdruck |
|
Betriebsdruck |
1 bar |
|
Wandstärke Unterboden |
6 mm |
|
Wandstärke Oberboden |
6 mm |
|
Wandstärke Mantel/Zylinder |
5 mm |
|
Anmerkungen |
Einer der Behälter hat ein Fußgestell, welches 2.050 mm aufträgt |
|
Material / Beschaffenheit |
|
| Attribute | Wert |
|
Schweißnähte innen verschliffen |
1 |
|
Ausstattung |
|
| Attribute | Wert |
|
Standform |
Fußring/Standzarge |
|
Bodenart oben |
gewölbter Boden |
|
Bodenart unten |
Kegelboden |
|
Zeichnung vorhanden |
1 |
|
Behälterdokumentation vorhanden |
ansonsten gem. Zeichnung + Fotos |