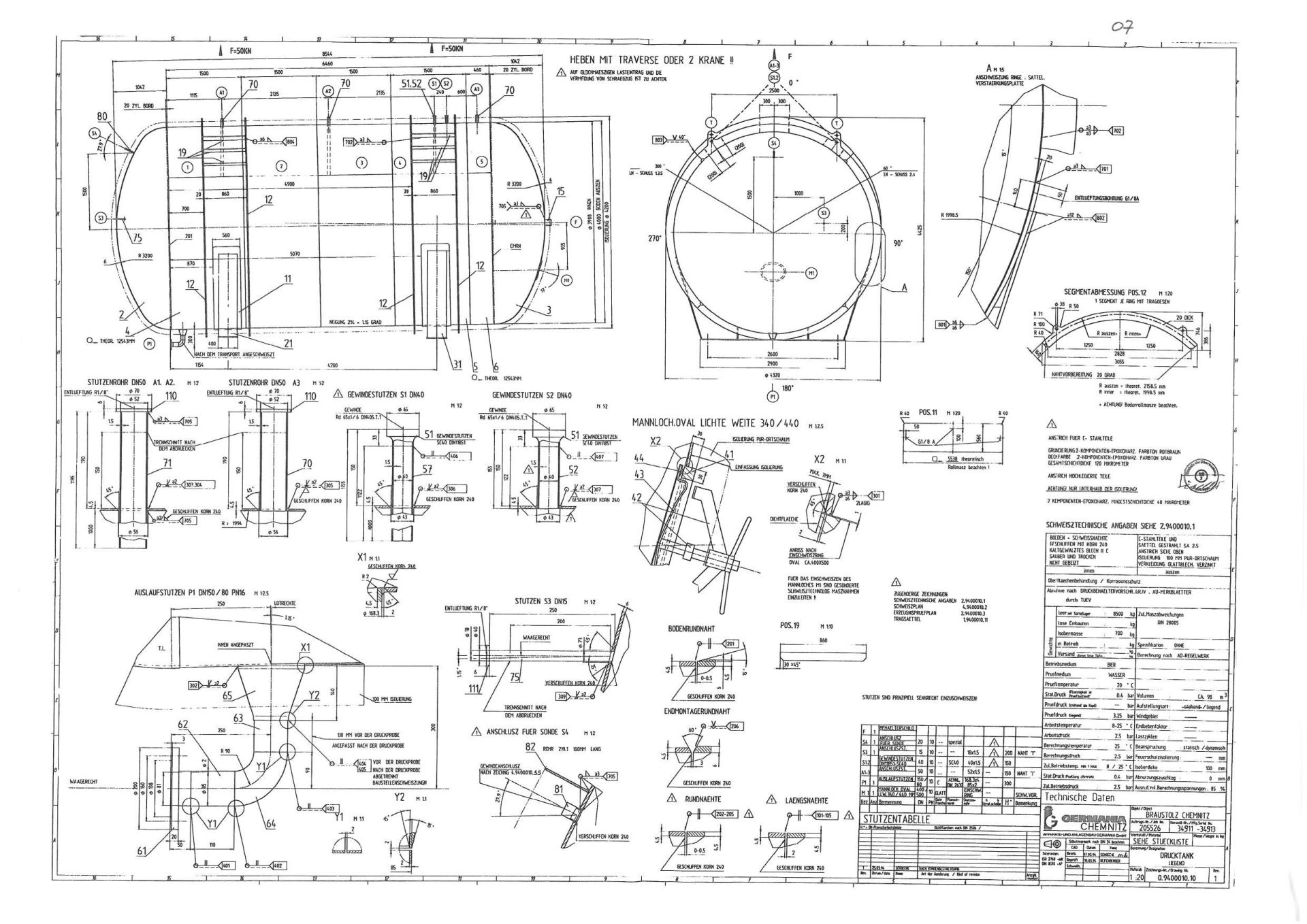
Druckbehälter aus Edelstahl (V2A), liegend
| Attribute | Wert |
|
Artikelnummer |
20-823GL |
|
Kurzbezeichnung 1 |
Druckbehälter aus Edelstahl (V2A), liegend |
|
Technische Daten / Maße |
|
|---|---|
| Attribute | Wert |
|
Stückzahl |
3 |
|
Volumen |
98000 Liter |
|
Behälterart |
Drucktank |
|
Zustand |
gebraucht |
|
Lebensmittelgeeignet |
1 |
|
Bauform |
liegend oberirdisch |
|
Innenbeschichtung |
keine/roh |
|
Durchmesser innen |
4000 mm |
|
Durchmesser außen |
4200 mm |
|
Zylindrische Länge |
6460 mm |
|
Gesamtlänge |
8744 mm |
|
Gewicht |
8500 kg |
|
Betriebsdruck |
Überdruck |
|
Betriebsdruck |
25 bar |
|
Prüfdruck |
325 bar |
|
Wandstärke Böden |
6 mm |
|
Wandstärke Mantel/Zylinder |
45 mm |
|
Anmerkungen |
Außen-Durchmesser mit Verstärkungsringen ca. 4.320 mm Mit Isolierung 9.500kg |
|
Material / Beschaffenheit |
|
| Attribute | Wert |
|
Werkstoff Füße |
Stahl |
|
Isolierung |
|
| Attribute | Wert |
|
Isolierung |
1 |
|
Isolierstärke |
100 mm |
|
Material Isoliermantel |
Stahl verzinkt |
|
Isoliermantel |
verschraubt/genietet |
|
Ausstattung |
|
| Attribute | Wert |
|
Standform |
Lagerschalen |
|
Anzahl |
2 |
|
Unterboden |
1 Auslaufstutzen NW 150 mit 90° Bogen NW 80 mit Flansch als Auslauf |
|
Hinterer Boden |
1 Gewindestutzen NW 20 |
|
Bodenart |
Korbbogenboden |
|
Zeichnung vorhanden |
1 |
|
Behälterdokumentation vorhanden |
ansonsten gem. Zeichnung + Fotos |